Immobile Residenziale

Via Gaetano Martucci 10, Castellammare di Stabia Napoli - CASTELLAMMARE DI STABIA(NA) data asta : 11.11.2025 da €90.032 (Asta)
Richiedi info:
ASTANETWORK
Descrizione

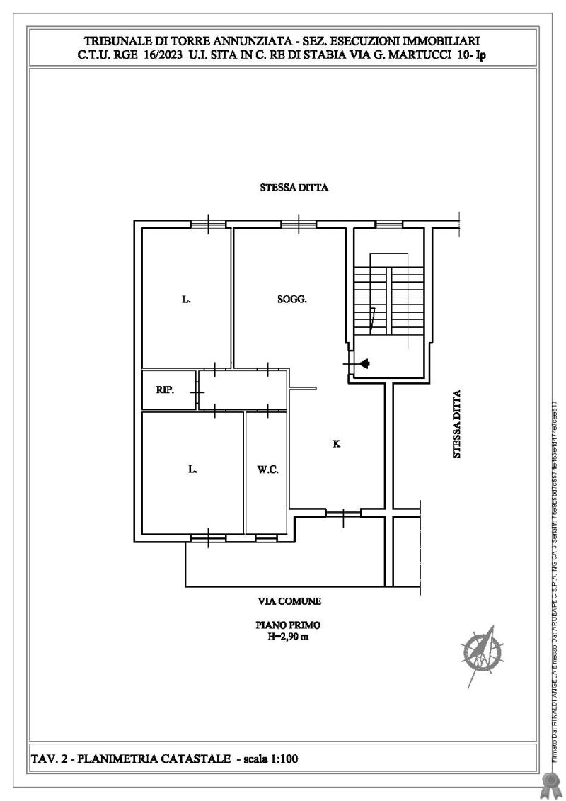
Piena ed intera proprietà di un appartamento di tipo economico sito nel Comune di Castellammare di Stabia (NA), alla via Gaetano Martucci n.10, ubicato al piano primo composto da quattro locali disimpegno e due bagni, balcone verandato e terrazzo a livello, privo del locale cucina e nello stato dei luoghi è fuso sul piano fisico con altra unità immobiliare estranea al presente pignoramento sita al piano terra, con accesso unicamente dalla U.I. sita al piano terra.


Dati immobile
  • ID immobile: 818434
  • Lotto: LOTTO UNICO
  • Data vendita: 11.11.2025
  • Prezzo base: 120042.45
  • Rialzo minimo: 3000.00
  • Data inserimento: 11.07.2025

Vuoi fare un affare immobiliare?