Immobile Commerciale

Via Casa Cirillo, 41/43, 80058 - TORRE ANNUNZIATA(NA) data asta : 03.12.2025 da €55.014 (Asta)
Richiedi info:
ASTANETWORK
Descrizione

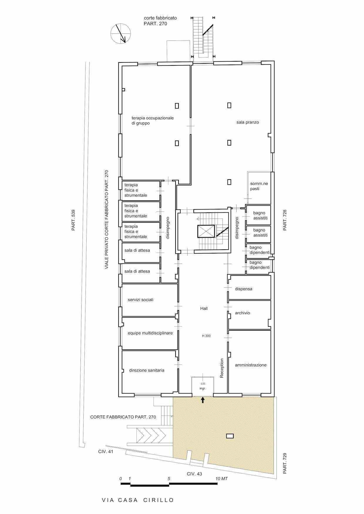
LIQUIDAZIONE 14 TER L.3/2012. QUOTA di 1/3 della piena proprietà di un'unità immobiliare (P. T.) di un fabbricato sito in Torre Annunziata (NA), Via Casa Cirillo al n. 41/43, scala unica, piano T. Composto di locali ad uso: sala di ingresso e reception, direzione sanitaria, equipe multidisciplinare, servizi sociali, sale attesa, terapie fisiche e strumentali, terapia occupazionale di gruppo, sala pranzo e somministrazione pasti, bagni assistiti e dipendenti, dispensa, archivio, amministrazione, disimpegni


Dati immobile
  • ID immobile: 823873
  • Lotto: 11
  • Data vendita: 03.12.2025
  • Prezzo base: 73352.33
  • Rialzo minimo: 4000.00
  • Data inserimento: 27.07.2025

Vuoi fare un affare immobiliare?