Immobile Commerciale

Via Casa Cirillo, 41/43, 80058 - TORRE ANNUNZIATA(NA) data asta : 03.12.2025 da €17.244 (Asta)
Richiedi info:
ASTANETWORK
Descrizione

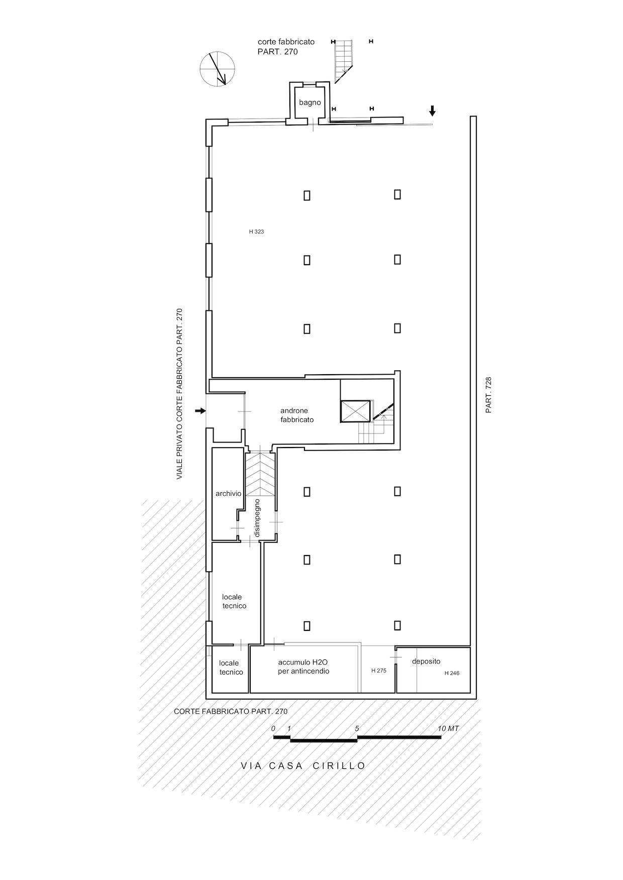
PROCEDURA DI LIQUIDAZIONE DEL PATRIMONIO EX ART. 14 TER L.3/2012. In vendita QUOTA di 1/3 della piena proprietà di una unità immobiliare posta al piano seminterrato di un fabbricato sito in Torre Annunziata (NA) alla Via Casa Cirillo n. 41/43. E' composto di: ampio locale rimessa con ingresso carrabile dall'area di corte a Sud del fabbricato, piccolo bagno, due locali tecnici, un locale deposito, un locale ad uso archivio, disimpegno di collegamento con l'androne del fabbricato.


Dati immobile
  • ID immobile: 823874
  • Lotto: 10
  • Data vendita: 03.12.2025
  • Prezzo base: 22991.61
  • Rialzo minimo: 4000.00
  • Data inserimento: 27.07.2025

Vuoi fare un affare immobiliare?