Altra Categoria

Rosta TO, Italia, 10090 - BRUINO(TO) data asta : 18.11.2025 da €186.000 (Asta)
Richiedi info:
ASTANETWORK
Descrizione

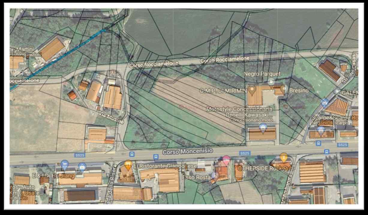
In Comune di Rosta, con accesso da strada Bagiò, piena proprietà di terreni agricoli della superficie catastale di complessivi mq. 57.078 distinti nella mappa C.T. al Foglio 10, particelle 24, 25, 27, 34, 119, 31, 101, 37, 72, 73, 240, 242, 91, 244, 246, 248, 56 e 136.


Dati immobile
  • ID immobile: 832217
  • Lotto: 3
  • Data vendita: 18.11.2025
  • Prezzo base: 248000.00
  • Rialzo minimo: 2000.00
  • Data inserimento: 10.09.2025

Vuoi fare un affare immobiliare?