Altra Categoria

Rosta TO, Italia, 10090 - BRUINO(TO) data asta : 18.11.2025 da €228.000 (Asta)
Richiedi info:
ASTANETWORK
Descrizione

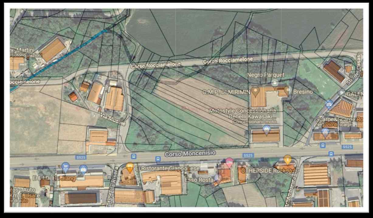
In Comune di Rosta, con accesso da strada Banchette e da strada Antica di Alpignano, piena proprietà di terreni agricoli della superficie catastale di complessivi mq. 54.308 distinti nella mappa C.T. al Foglio 4, particelle 44, 52, 53, 54, 112, 119, 188, 56, 57, 95, 21 e al Foglio 5, particella 158.


Dati immobile
  • ID immobile: 832218
  • Lotto: 2
  • Data vendita: 18.11.2025
  • Prezzo base: 304000.00
  • Rialzo minimo: 2000.00
  • Data inserimento: 10.09.2025

Vuoi fare un affare immobiliare?