Altra Categoria

Rosta TO, Italia, 10090 - BRUINO(TO) data asta : 18.11.2025 da €3.750 (Asta)
Richiedi info:
ASTANETWORK
Descrizione

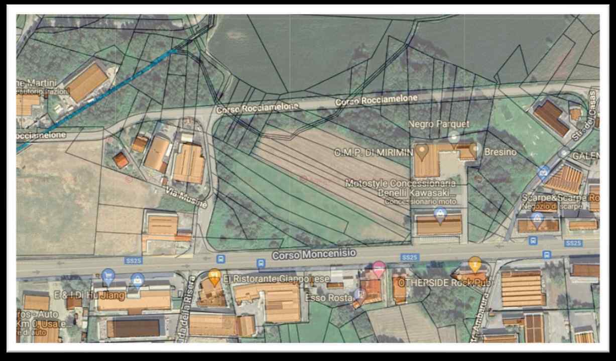
In Comune di Rosta, in area residenziale, piena proprietà di terreni della superficie catastale di complessivi mq. 5.627 distinti nella mappa C.T. al Foglio 19, particelle 17, 375, 378 e 381, formanti un sol corpo.


Dati immobile
  • ID immobile: 832219
  • Lotto: 6
  • Data vendita: 18.11.2025
  • Prezzo base: 5000.00
  • Rialzo minimo: 500.00
  • Data inserimento: 10.09.2025

Vuoi fare un affare immobiliare?