Altra Categoria

Rosta TO, Italia, 10090 - BRUINO(TO) data asta : 18.11.2025 da €54.000 (Asta)
Richiedi info:
ASTANETWORK
Descrizione

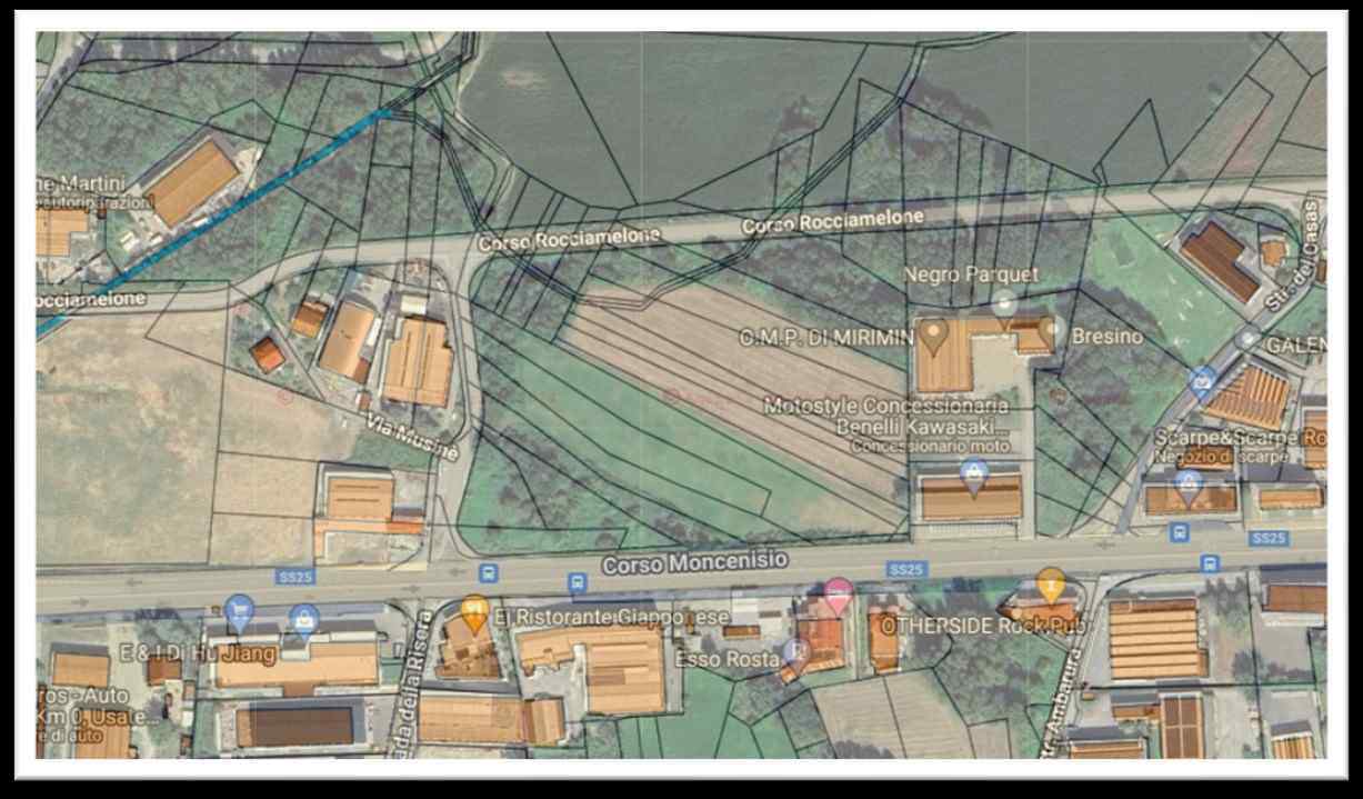
In Comune di Rosta, all'interno della collina morenica in zona periferica, piena proprietà di terreni della superficie catastale di complessivi mq. 19.946 distinti nella mappa C.T. al Foglio 18, particella 195 e al Foglio 19, particelle 131, 132, 133, 266, 267, 268, 136, 137, 138, 286, 287 e 297.


Dati immobile
  • ID immobile: 832227
  • Lotto: 5
  • Data vendita: 18.11.2025
  • Prezzo base: 72000.00
  • Rialzo minimo: 1000.00
  • Data inserimento: 10.09.2025

Vuoi fare un affare immobiliare?