Altra Categoria

Rosta TO, Italia, 10090 - BRUINO(TO) data asta : 18.11.2025 da €294.750 (Asta)
Richiedi info:
ASTANETWORK
Descrizione

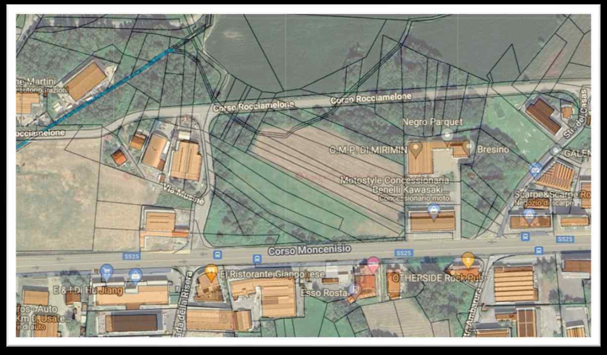
In Comune di Rosta, tra corso Moncenisio, via Musiné e corso Rocciamelone, piena proprietà di terreni con capacità edificatoria della superficie catastale di complessivi mq. 15.410 distinti nella mappa C.T. al Foglio 2, particelle 89, 97, 119, 96, 93, 346, 95, 317 e 366.


Dati immobile
  • ID immobile: 832228
  • Lotto: 1
  • Data vendita: 18.11.2025
  • Prezzo base: 393000.00
  • Rialzo minimo: 2000.00
  • Data inserimento: 10.09.2025

Vuoi fare un affare immobiliare?