+39 0282396408
Home
Chi siamo
Servizi
FAQ
Partners
Segnala e Guadagna
Info e recapiti
Contattaci
Immobili
Dettagli immobile
Immobile Residenziale
Via S. Francesco D'Assisi, 15, 24040 - Bonate Sotto(BG)
data asta : 16.12.2025
da €347.489
(Asta)
Richiedi info:
ASTANETWORK
########
+39 02.82396408
Mostra numero
Ho letto e accetto
l'informativa sulla privacy
Invia richiesta
Descrizione
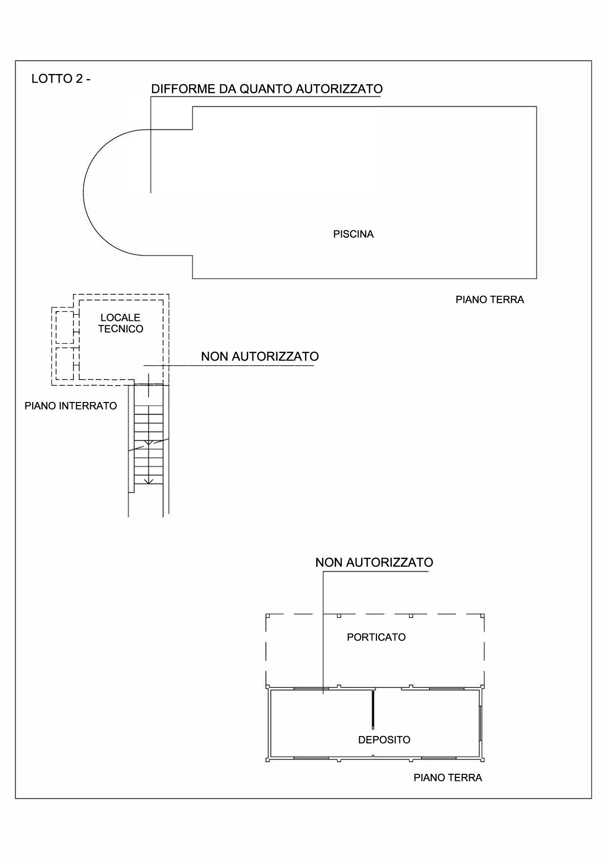
Terreni prevalentemente a destinazione residenziale
Dati immobile
ID immobile:
832481
Lotto:
2
Data vendita:
16.12.2025
Prezzo base:
463318.64
Rialzo minimo:
2000.00
Data inserimento:
11.09.2025
Vuoi fare un affare immobiliare?
Contattaci