+39 02.82396408
Home
Chi siamo
Servizi
FAQ
Partners
Segnala e Guadagna
Info e recapiti
Contattaci
Immobili
Dettagli immobile
Immobile Residenziale
Via del Sassone, 103, 00047 - MARINO(RM)
data asta : 04.12.2025
da €132.375
(Asta)
Richiedi info:
ASTANETWORK
########
+39 02.82396408
Mostra numero
Ho letto e accetto
l'informativa sulla privacy
Invia richiesta
Descrizione
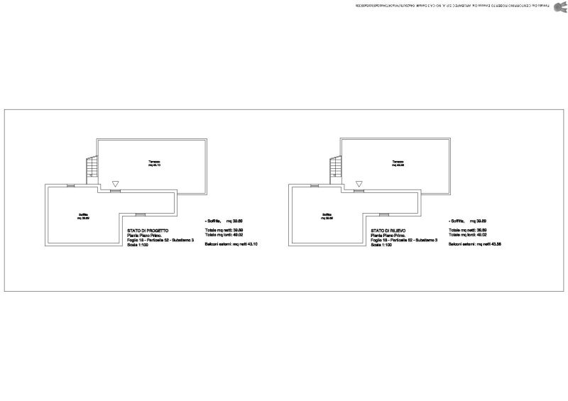
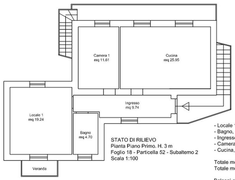
Appartamento e magazzino
Dati immobile
ID immobile:
836076
Lotto:
1
Data vendita:
04.12.2025
Prezzo base:
176500.00
Rialzo minimo:
9000.00
Data inserimento:
24.09.2025
Vuoi fare un affare immobiliare?
Contattaci