Immobile Commerciale

Via Milano, 32/A, 88050 - AMARONI(CZ) data asta : 25.11.2025 da €9.866 (Asta)
Richiedi info:
ASTANETWORK
Descrizione

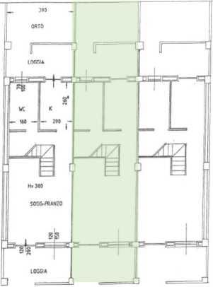
Unità immobiliare facente parte di fabbricato, destinata ad abitazione al piano terzo, Cat. F/3, int. 3.


Dati immobile
  • ID immobile: 838445
  • Lotto: 2
  • Data vendita: 25.11.2025
  • Prezzo base: 13155.00
  • Rialzo minimo: 500.00
  • Data inserimento: 02.10.2025

Vuoi fare un affare immobiliare?