Immobile Residenziale

Forgitelle, via Forgitelle, Spezzano della Sila Cosenza - Spezzano Della Sila(CS) data asta : 16.02.2026 da €34.800 (Asta)
Richiedi info:
ASTANETWORK
Descrizione

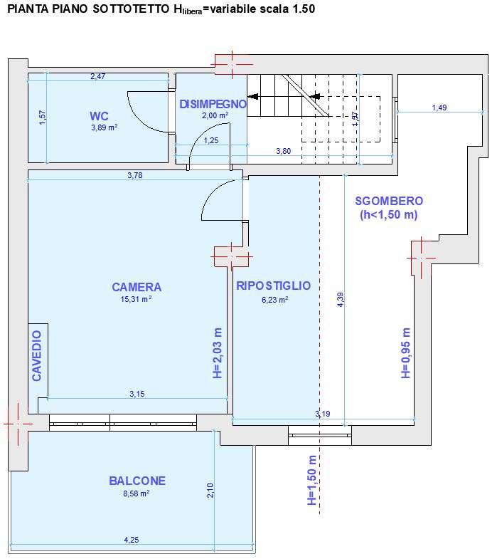
Abitazione di tipo economico (piano 2-3) ubicato all’interno di un edificio di 3 piani fuori terra, un piano sottotetto e un piano seminterrato. Superficie catastale totale: 100 mq, superficie catastale totale escluse aree scoperte: 95 mq; consistenza 4,5 vani. L’unità immobiliare è un bene di proprietà di persone fisiche non detenute in regime di impresa, pertanto, il trasferimento della suddetta proprietà immobiliare è soggetto all’imposta proporzionale di registro ipotecale e catastale.


Dati immobile
  • ID immobile: 838449
  • Lotto:
  • Data vendita: 16.02.2026
  • Prezzo base: 46400.00
  • Rialzo minimo: 0.00
  • Data inserimento: 02.10.2025

Vuoi fare un affare immobiliare?