+39 02.82396408
Home
Chi siamo
Servizi
FAQ
Partners
Segnala e Guadagna
Info e recapiti
Contattaci
Immobili
Dettagli immobile
Altra Categoria
Via dei Mille n. 41, 80035 - NOLA(NA)
data asta : 13.01.2026
da €12.000
(Asta)
Richiedi info:
ASTANETWORK
########
+39 02.82396408
Mostra numero
Ho letto e accetto
l'informativa sulla privacy
Invia richiesta
Descrizione
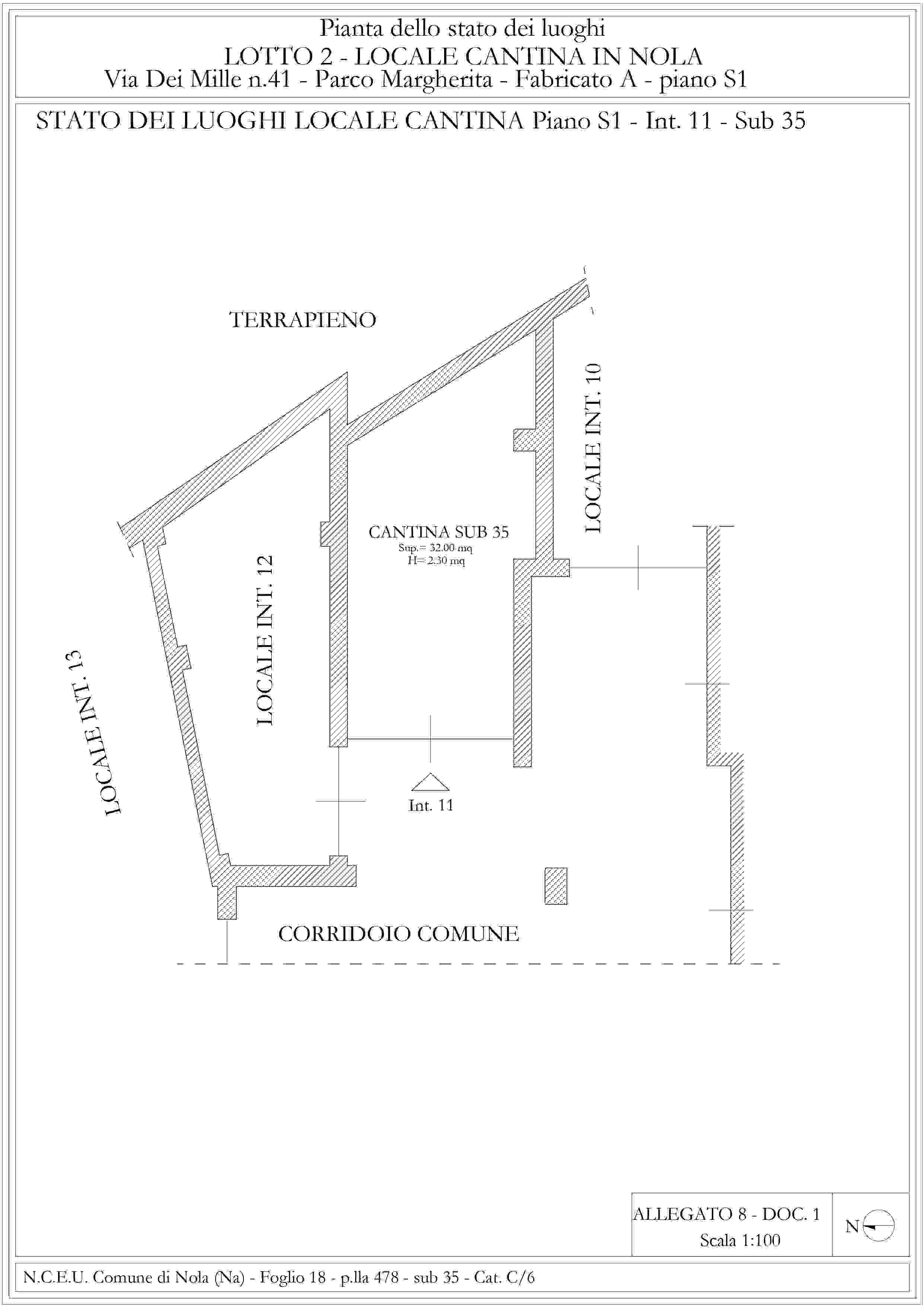
Locale cantina, parco Margherita fabbricato A via dei Mille n. 41, piano seminterrato cons. 32 mq.
Dati immobile
ID immobile:
838981
Lotto:
LOTTO UNICO
Data vendita:
13.01.2026
Prezzo base:
16000.00
Rialzo minimo:
0.00
Data inserimento:
04.10.2025
Vuoi fare un affare immobiliare?
Contattaci