Immobile Industriale

Contrada Piagge sulla S.S.598, 85010 - Gallicchio(PZ) data asta : 17.12.2025 da €360.443 (Asta)
Richiedi info:
ASTANETWORK
Descrizione

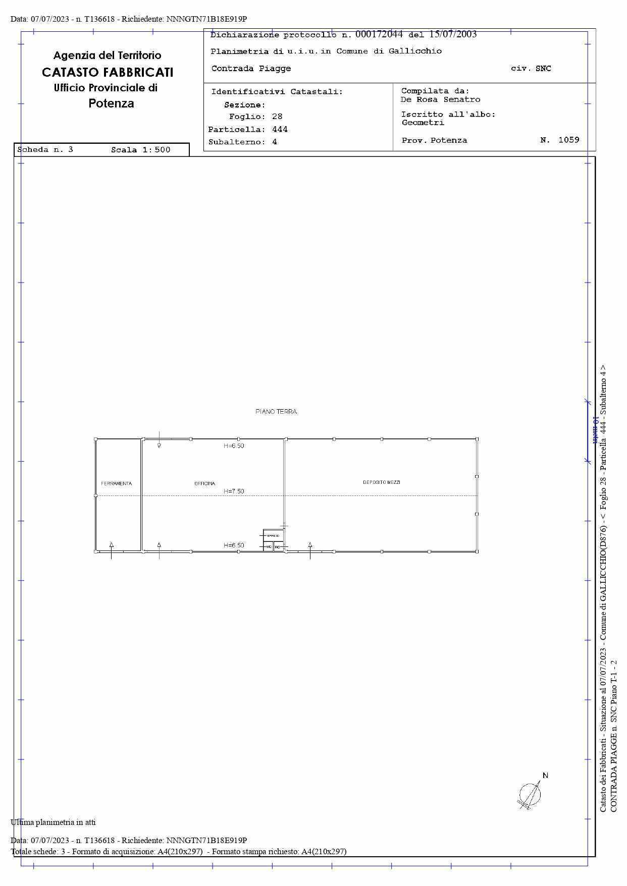
LOTTO UNO: Piena ed esclusiva proprietà di compendio immobiliare ubicato nel Comune di Gallicchio (PZ) alla contrada Piagge sulla S.S.598. Il compendio è composto da un fabbricato e capannoni, i quali fanno parte della sede operativa di un’azienda industriale, che si occupava prevalentemente di produzione di calcestruzzo, di prefabbricati vari in cls e della realizzazione di opere pubbliche private.


Dati immobile
  • ID immobile: 840458
  • Lotto: 1
  • Data vendita: 17.12.2025
  • Prezzo base: 480591.28
  • Rialzo minimo: 0.00
  • Data inserimento: 08.10.2025

Vuoi fare un affare immobiliare?