Immobile Residenziale

Via dello Speziale, 24, 00049 - Velletri(RM) data asta : 18.12.2025 da €40.500 (Asta)
Richiedi info:
ASTANETWORK
Descrizione

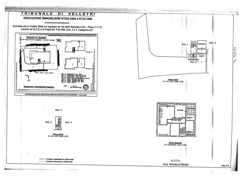
Appartamento al piano secondo mansardato a cui si accede per mezzo di un vano scala autonomo con accesso dal piano terra, composto da ingresso corridoio che funge da disimpegno per un soggiorno, tre camere, cucina e bagno oltre due balconi con annessi cantina al piano terra e piccola tettoia realizzata quest’ultima senza alcun titolo edilizio ed area scoperta di pertinenza esclusiva.


Dati immobile
  • ID immobile: 841489
  • Lotto: 3
  • Data vendita: 18.12.2025
  • Prezzo base: 54000.00
  • Rialzo minimo: 2700.00
  • Data inserimento: 13.10.2025

Vuoi fare un affare immobiliare?