Immobile Residenziale

Via Napoli, 3, 04016 - Sabaudia(LT) data asta : 13.01.2026 da €846.750 (Asta)
Richiedi info:
ASTANETWORK
Descrizione

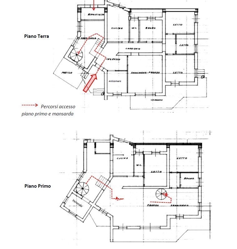
Villa ubicata a Sabaudia (LT), via Napoli n. 3., si sviluppa per una superficie di circa 1.350,00 mq sulla quale insiste un fabbricato principale di tipologia “villa unifamiliare” realizzato negli anni 60 che si articola su due piani fuori terra corredati di mansarda e cantina oltre ad un fabbricato secondario, ubicato posteriormente rispetto al fronte strada di via Napoli, con destinazione deposito e autorimesse / box auto. Per la descrizione dettagliata del bene, si rimanda alla CTU.


Dati immobile
  • ID immobile: 842960
  • Lotto: 2
  • Data vendita: 13.01.2026
  • Prezzo base: 1129000.00
  • Rialzo minimo: 22500.00
  • Data inserimento: 17.10.2025

Vuoi fare un affare immobiliare?