Immobile Residenziale

Località Santa Maria, via Attilio Soresini, 5, 24050 - Torre Pallavicina(BG) data asta : 13.01.2026 da €54.506 (Asta)
Richiedi info:
ASTANETWORK
Descrizione

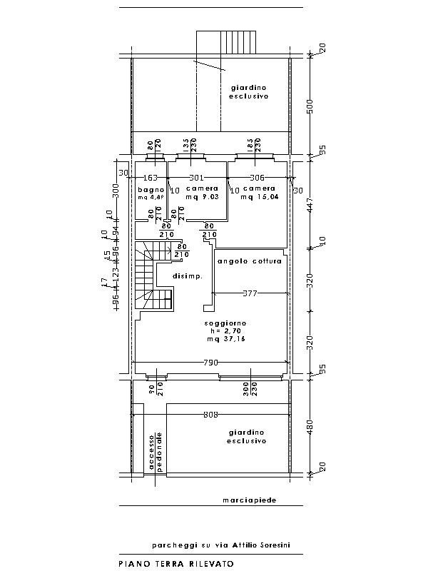
Appartamento a piano terra, in fabbricato condominiale, composto da soggiorno/cucina, disimpegno, due camere, bagno e due porzioni di corte esclusiva, con annessi cantina, due ripostigli e due disimpegni a piano interrato, collegati da scala interna esclusiva. Autorimessa a piano interrato.


Dati immobile
  • ID immobile: 843018
  • Lotto: LOTTO UNICO
  • Data vendita: 13.01.2026
  • Prezzo base: 72675.00
  • Rialzo minimo: 1000.00
  • Data inserimento: 17.10.2025

Vuoi fare un affare immobiliare?