Immobile Residenziale

Via Renzo e Lucia, 4, 23868 - Valmadrera(LC) data asta : 11.02.2026 da €221.925 (Asta)
Richiedi info:
ASTANETWORK
Descrizione

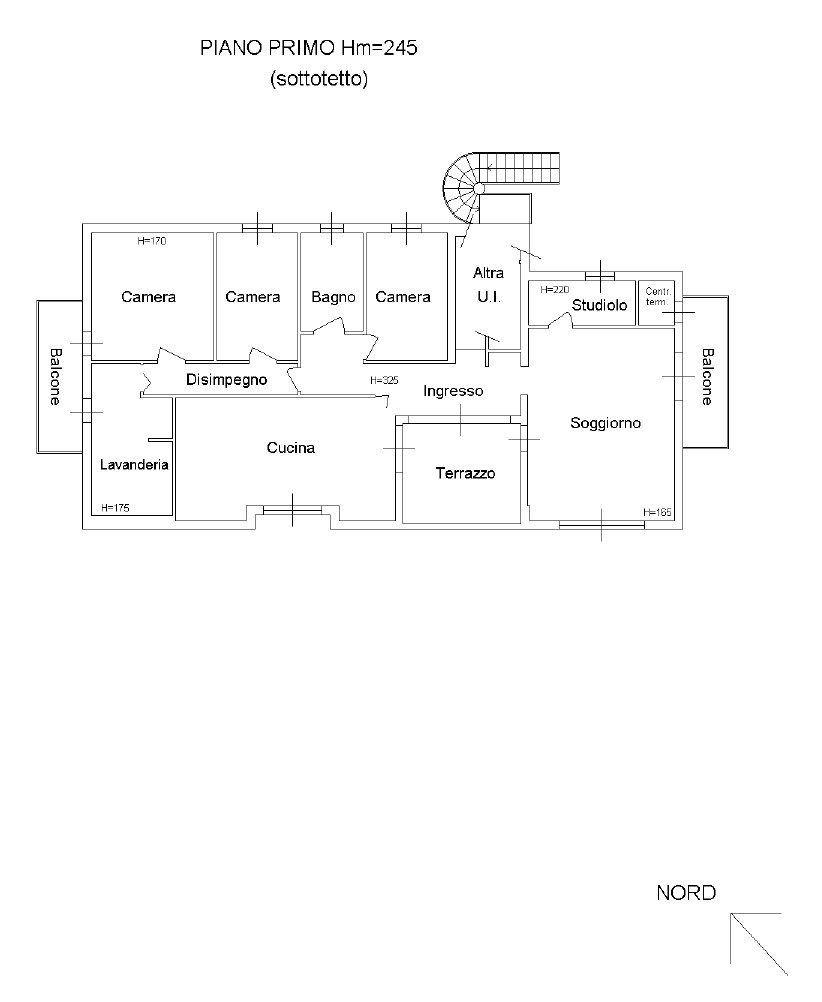
Piena Proprietà. In Comune di VALMADRERA nel fabbricato bifamiliare in Via Renzo e Lucia n. 4,unità immobiliare utilizzata come appartamento al p.1-sottotetto (ancorchè priva dei contro tavolati necessari al raggiungimento dell'altezza media ponderale richiesta per il recupero del sottotetto ai fini abitativi); composta da dis, soggiorno, ripostiglio (utilizzato come studio), cucina abitabile, 3 camere, bagno, lavanderia, terrazzo a pozzo, 2 balconi e centrale termica.


Dati immobile
  • ID immobile: 843217
  • Lotto: LOTTO UNICO
  • Data vendita: 11.02.2026
  • Prezzo base: 295900.00
  • Rialzo minimo: 1000.00
  • Data inserimento: 17.10.2025

Vuoi fare un affare immobiliare?