Immobile Residenziale

Santo Spirito, Strada Catino, 10/D, comparto 5, 70127 - Bari(BA) data asta : 22.12.2025 da €141.525 (Asta)
Richiedi info:
ASTANETWORK
Descrizione

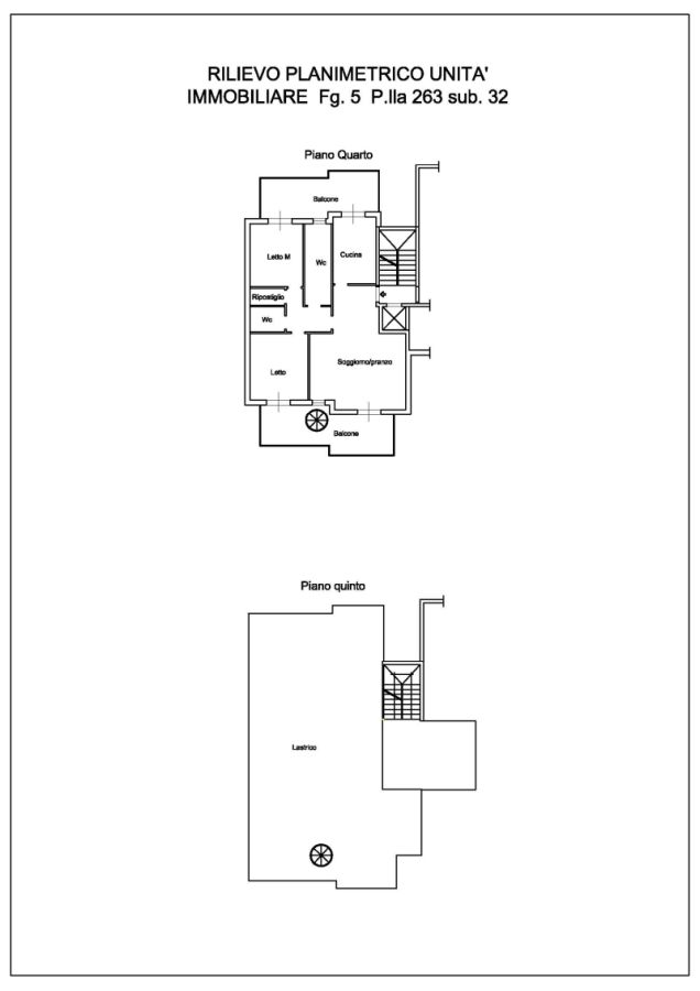
Piena proprietà per la quota di 1/1 dell’unità immobiliare facente parte del “fabbricato D” di complesso residenziale accessibile attraverso un cancello carrabile e un cancello pedonale direttamente dalla Strada Catino, sita al quarto piano della scala D, interno otto, composto da due vani, soggiorno-pranzo, disimpegno, cucina, due bagni, ripostiglio e due balconi, uno lato sud e uno lato nord.


Dati immobile
  • ID immobile: 844129
  • Lotto: LOTTO UNICO
  • Data vendita: 22.12.2025
  • Prezzo base: 188700.00
  • Rialzo minimo: 5000.00
  • Data inserimento: 21.10.2025

Vuoi fare un affare immobiliare?