+39 0282396408
Home
Chi siamo
Servizi
FAQ
Partners
Segnala e Guadagna
Info e recapiti
Contattaci
Immobili
Dettagli immobile
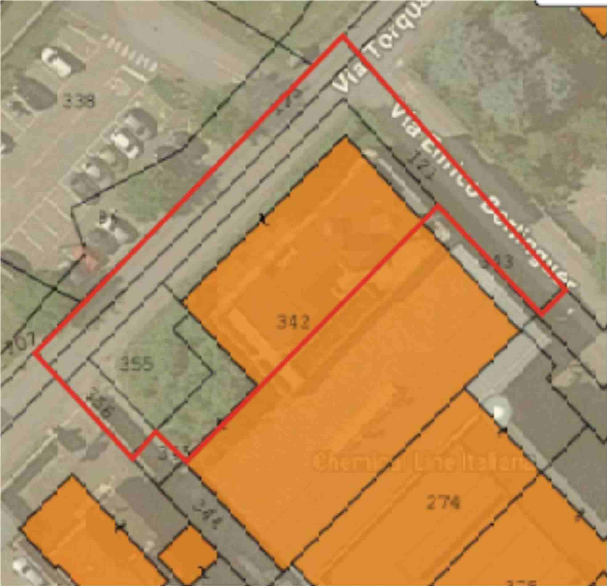
Immobile Industriale
Via Torquato Tasso, 4, 20005 - Pogliano Milanese(MI)
data asta : 15.01.2026
da €217.500
(Asta)
Richiedi info:
ASTANETWORK
########
+39 02.82396408
Mostra numero
Ho letto e accetto
l'informativa sulla privacy
Invia richiesta
Descrizione
Edificio cielo terra a destinazione ricettiva (albergo) in stato di completo abbandono
Dati immobile
ID immobile:
850244
Lotto:
LOTTO UNICO
Data vendita:
15.01.2026
Prezzo base:
290000.00
Rialzo minimo:
5000.00
Data inserimento:
11.11.2025
Vuoi fare un affare immobiliare?
Contattaci