Immobile Residenziale

Via Sant'Anna, 80011 - Acerra(NA) data asta: 10.03.2026 Offerta minima €42.547 (Asta)
Richiedi info:
ASTANETWORK
Descrizione

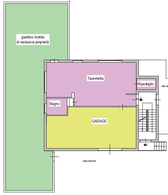
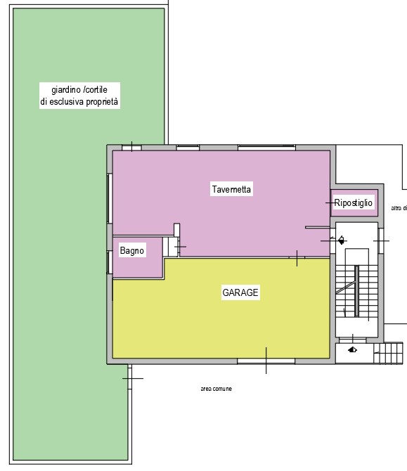
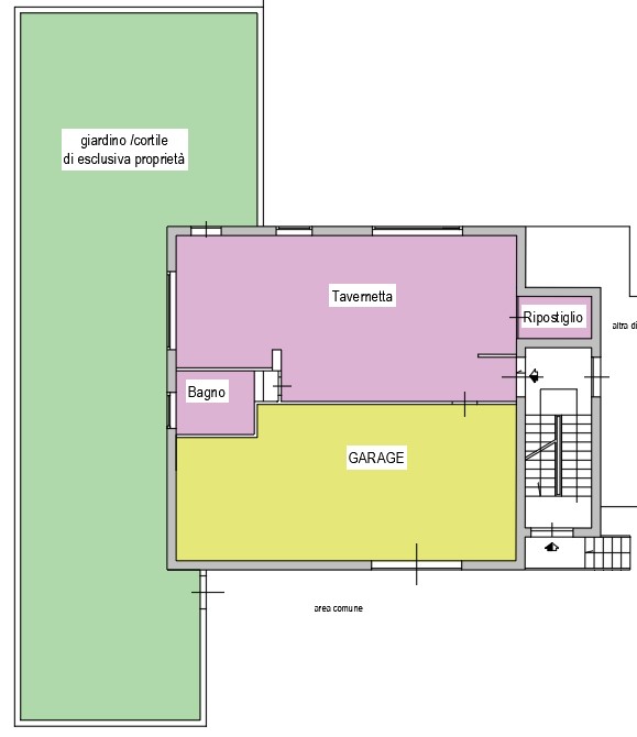
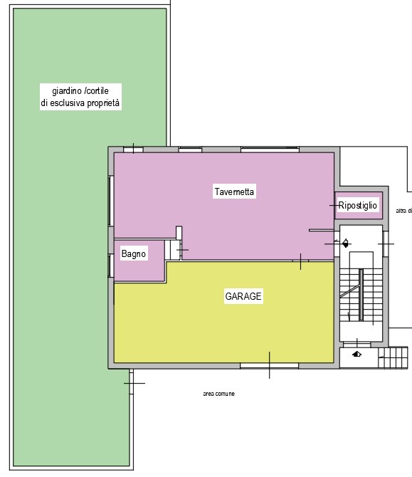
Piena proprietà per la quota di 1/1 di unità immobiliare costituita da piano terra, primo piano , secondo piano e sottotetto , sita nel Comune di Acerra , Via San Gioacchino , censita al N.C.E.U. di detto Comune al Foglio 49, Particella 149, sub 4, Categoria A/4, classe 4 , vani 4 , R.C. 206,58, , P.T-1°. Confina a EST altra ditta ; a SUD altra ditta; ad OVEST con altra ditta al foglio.1, particella 330, subalterno 4 .


Dati immobile
  • ID immobile: 855228
  • Lotto: LOTTO UNICO
  • Data vendita: 10.03.2026
  • Prezzo base: 56.729
  • Rialzo minimo: 2000.00
  • Data inserimento: 27.11.2025

Vuoi fare un affare immobiliare?