Immobile Residenziale

Via Giuseppe Garibaldi 22, 36045 - Montebello Vicentino(VI) data asta : 18.02.2026 da €35.000 (Asta)
Richiedi info:
ASTANETWORK
Descrizione

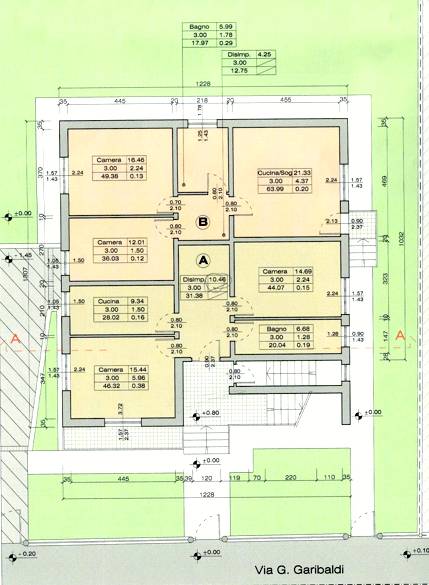
Appartamento posto al piano rialzato di un fabbricato condominiale ubicato a Montebello Vicentino (VI), Via Giuseppe Garibaldi n.22.L’appartamento è inserito in un piccolo fabbricato condominiale con sviluppo su due piani fuori terra sovrapposti e un piano seminterrato, con due appartamenti al piano rialzato e un appartamento al piano secondo. L’appartamento è composto da un vano di disbrigo sul quale si affacciano tutti i vani: una cucina, un bagno e due camere.


Dati immobile
  • ID immobile: 855577
  • Lotto: 2
  • Data vendita: 18.02.2026
  • Prezzo base: 46000.00
  • Rialzo minimo: 500.00
  • Data inserimento: 27.11.2025

Vuoi fare un affare immobiliare?