Immobile Commerciale

Via V. Mazzola, 3, 80026 - Casoria(NA) data asta : 03.02.2026 da €37.520 (Asta)
Richiedi info:
ASTANETWORK
Descrizione

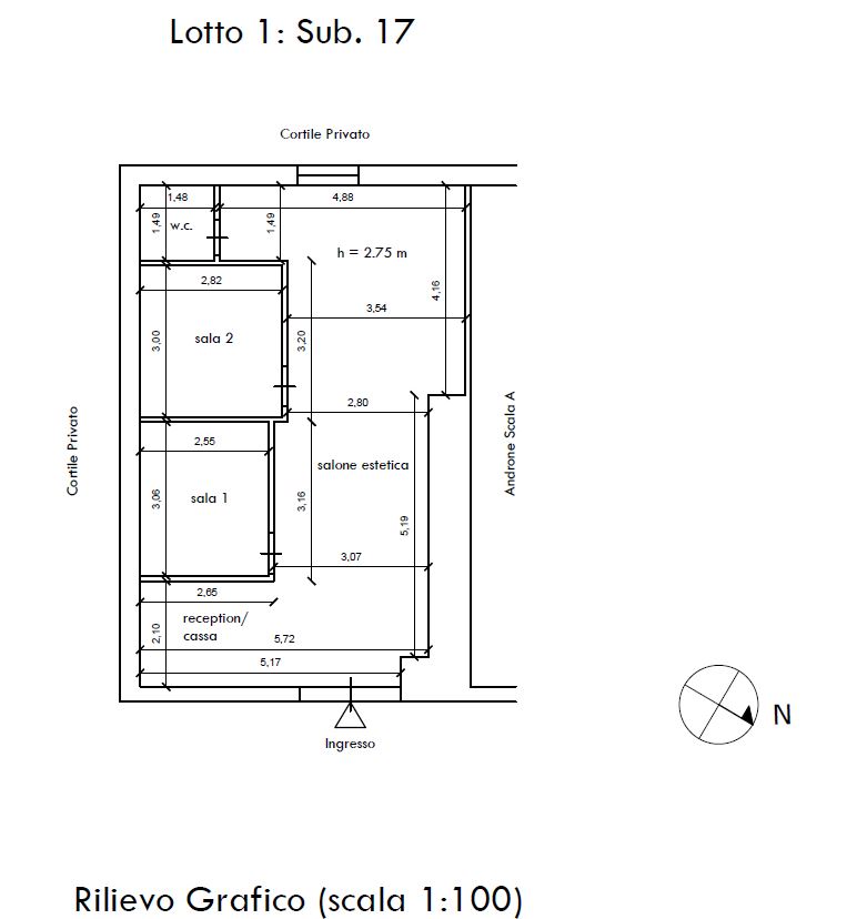
Piena proprietà della quota di 1/1 di un locale commerciale composto da vano principale, due sale interne e un bagno, ubicato al piano terra di un fabbricato residenziale, sito nel Comune di Casoria (NA), alla Via Valentino Mazzola, 3 per una superficie interna complessiva di mq 73,60 lordi.


Dati immobile
  • ID immobile: 856389
  • Lotto: LOTTO UNICO
  • Data vendita: 03.02.2026
  • Prezzo base: 50025.00
  • Rialzo minimo: 2000.00
  • Data inserimento: 30.11.2025

Vuoi fare un affare immobiliare?