Immobile Residenziale

Via Bologna n. 59/H, 80010 - Villaricca(NA) data asta : 24.02.2026 da €90.000 (Asta)
Richiedi info:
ASTANETWORK
Descrizione

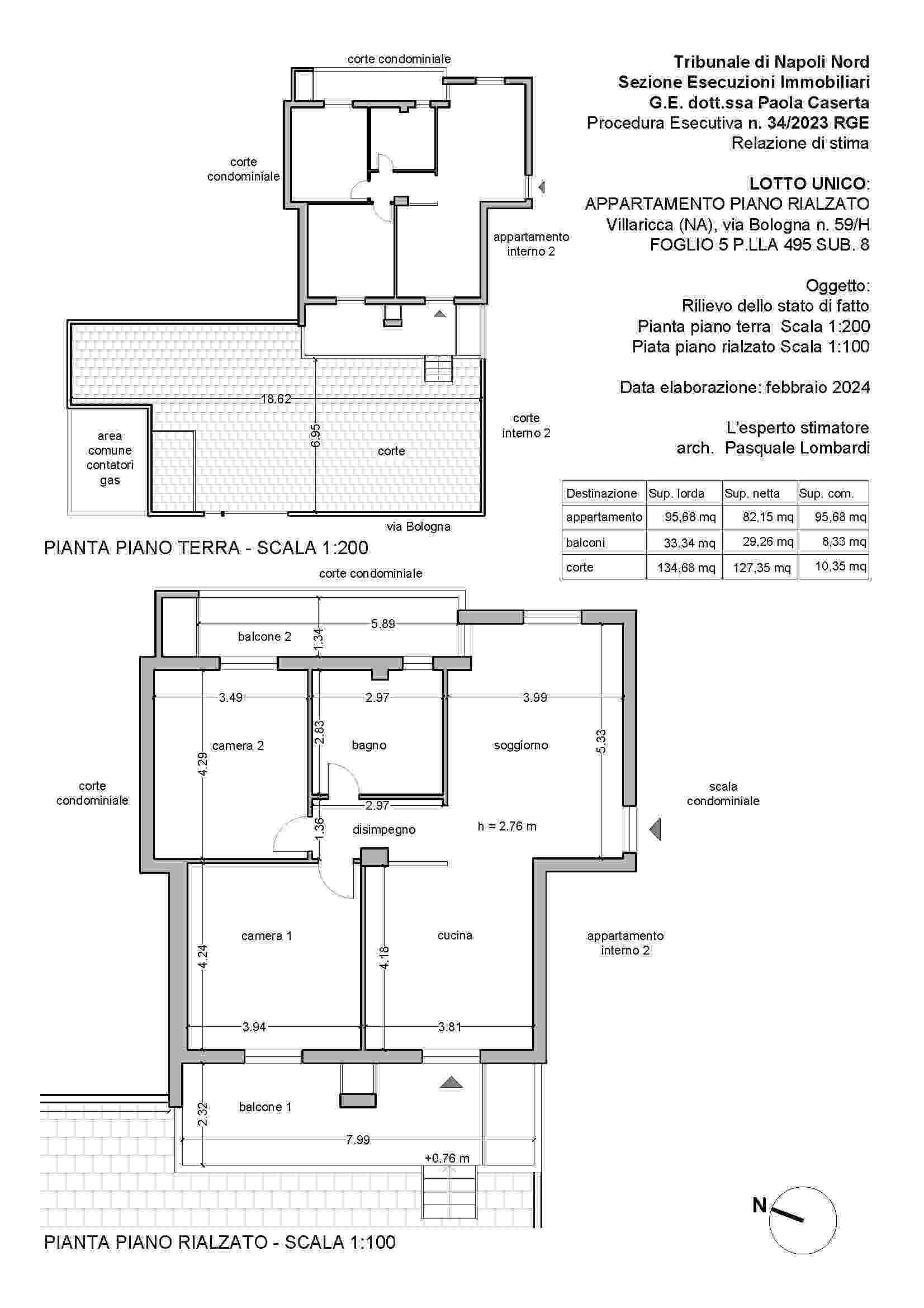
PIENA ED INTERA PROPRIETÀ DI APPARTAMENTO SITO IN VILLARICCA (NA) ALLA VIA BOLOGNA N. 59/H, AL PIANO RIALZATO COMPOSTO DA SOGGIORNO/CUCINA, DISIMPEGNO, UN BAGNO, DUE CAMERE, DUE BALCONI E CORTE ESCLUSIVA CIRCA 114 MQ OLTRE AD UN POSTO AUTO ASSEGNATO SU CORTE CONDOMINIALE.


Dati immobile
  • ID immobile: 856921
  • Lotto: LOTTO UNICO
  • Data vendita: 24.02.2026
  • Prezzo base: 120000.00
  • Rialzo minimo: 5000.00
  • Data inserimento: 03.12.2025

Vuoi fare un affare immobiliare?