Immobile Residenziale

Frazione Laurignano, Via Santa Maria della Stozza, 87045 - Dipignano(CS) data asta : 05.03.2026 da €70.995 (Asta)
Richiedi info:
ASTANETWORK
Descrizione

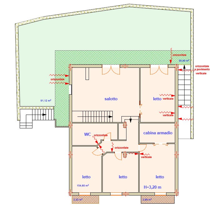
Abitazione facente parte di una villetta bifamiliare, composta al piano seminterrato da zona giorno con cucina, soggiorno, bagno, ripostiglio e lavanderia; al piano terra da quattro camere, un bagno, un guardaroba e un salotto. Sup. commerciale pari a 293,27 mq. Occupato. Dati catastali: Foglio 2, particella 667, sub. 2; Categoria A/7, piano S1-T; classe U; consistenza 10 vani; rendita .955,45;


Dati immobile
  • ID immobile: 857641
  • Lotto:
  • Data vendita: 05.03.2026
  • Prezzo base: 94660.65
  • Rialzo minimo: 3786.41
  • Data inserimento: 04.12.2025

Vuoi fare un affare immobiliare?