Immobile Residenziale

Via Madonna dell'Olio, Cesa CE, Italia, 81030 - Cesa(CE) data asta : 24.02.2026 da €103.500 (Asta)
Richiedi info:
ASTANETWORK
Descrizione

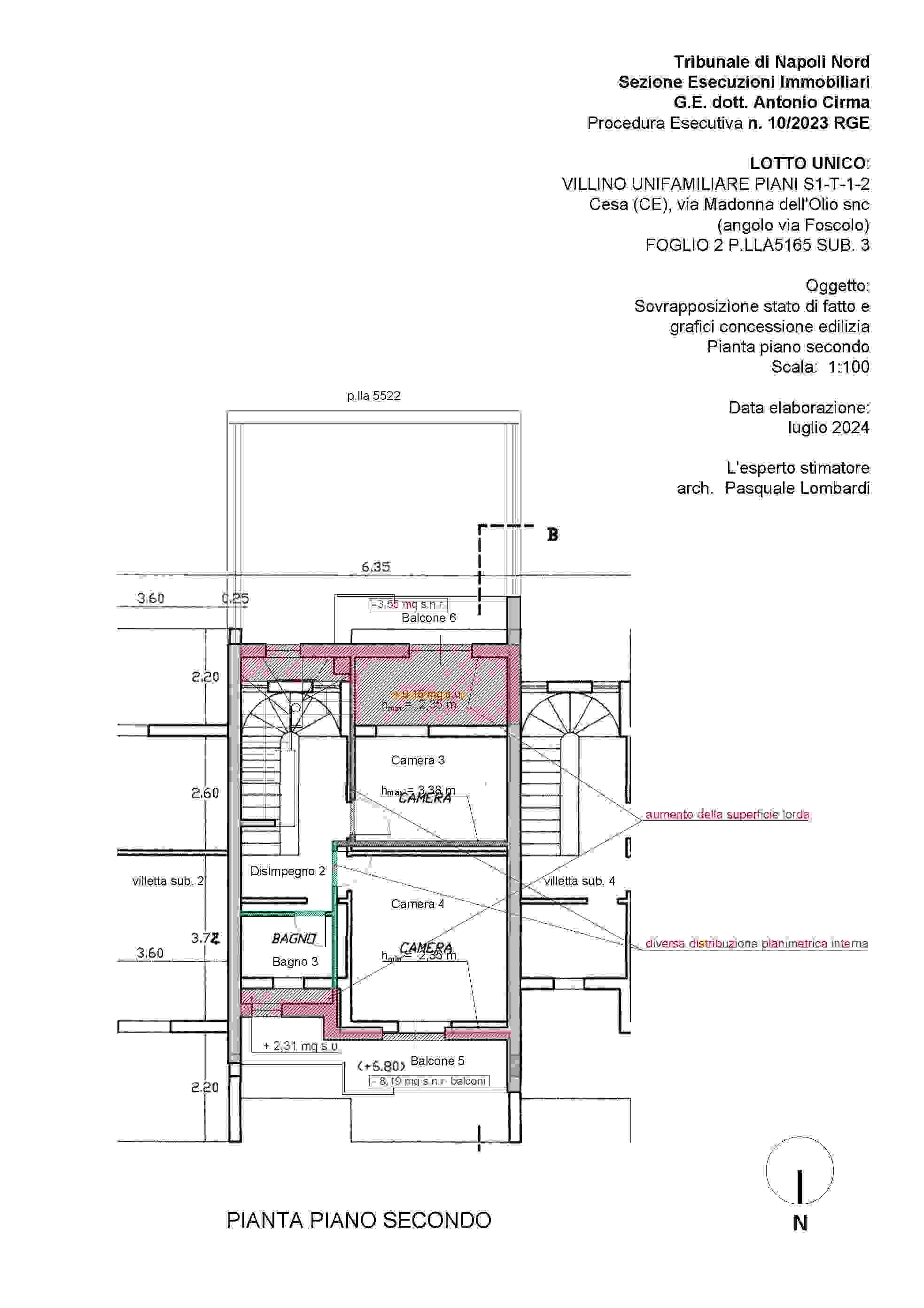
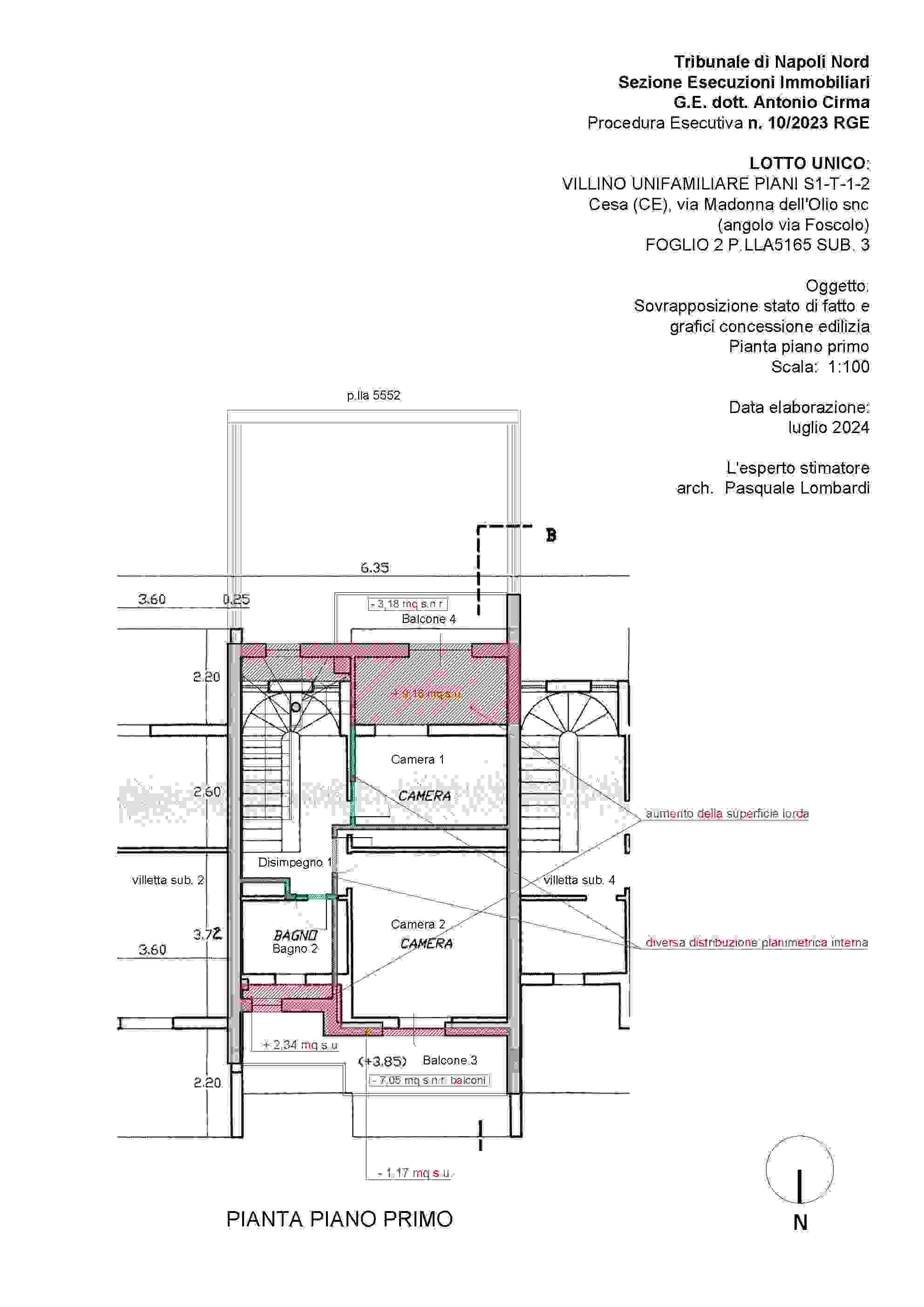
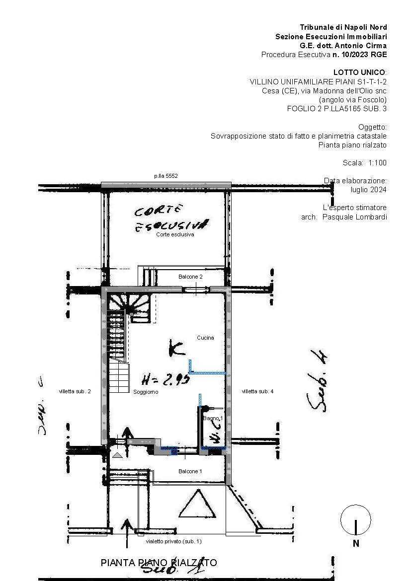
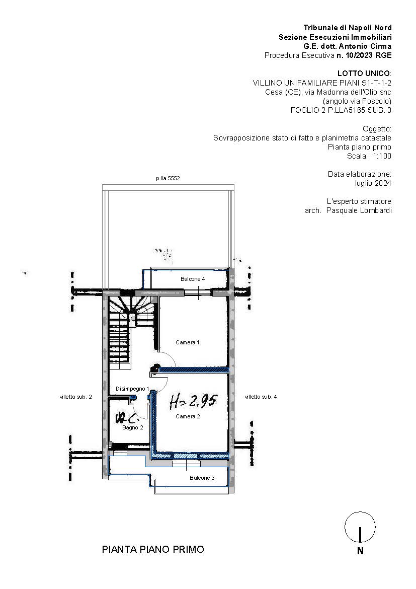
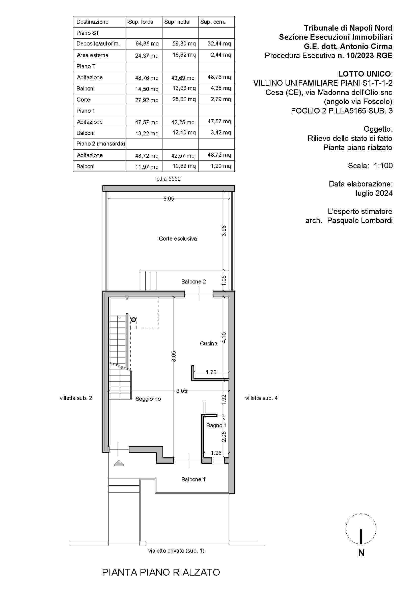
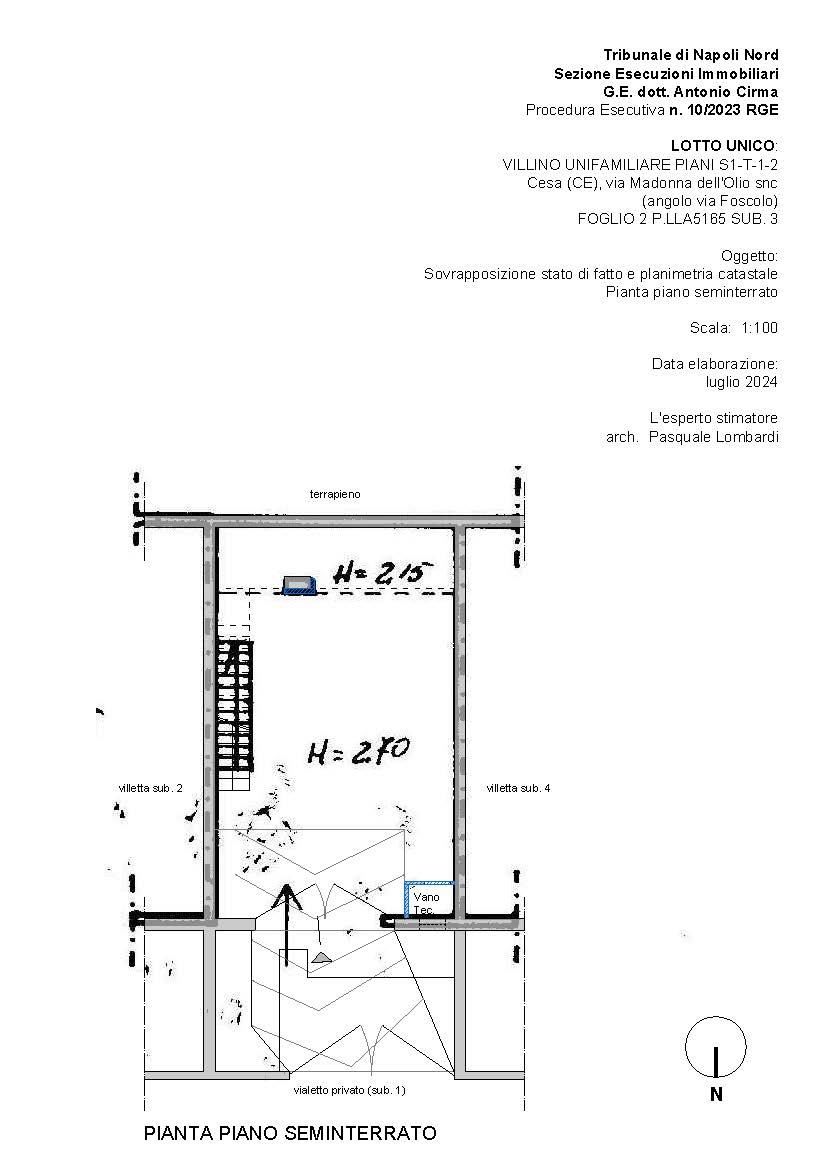
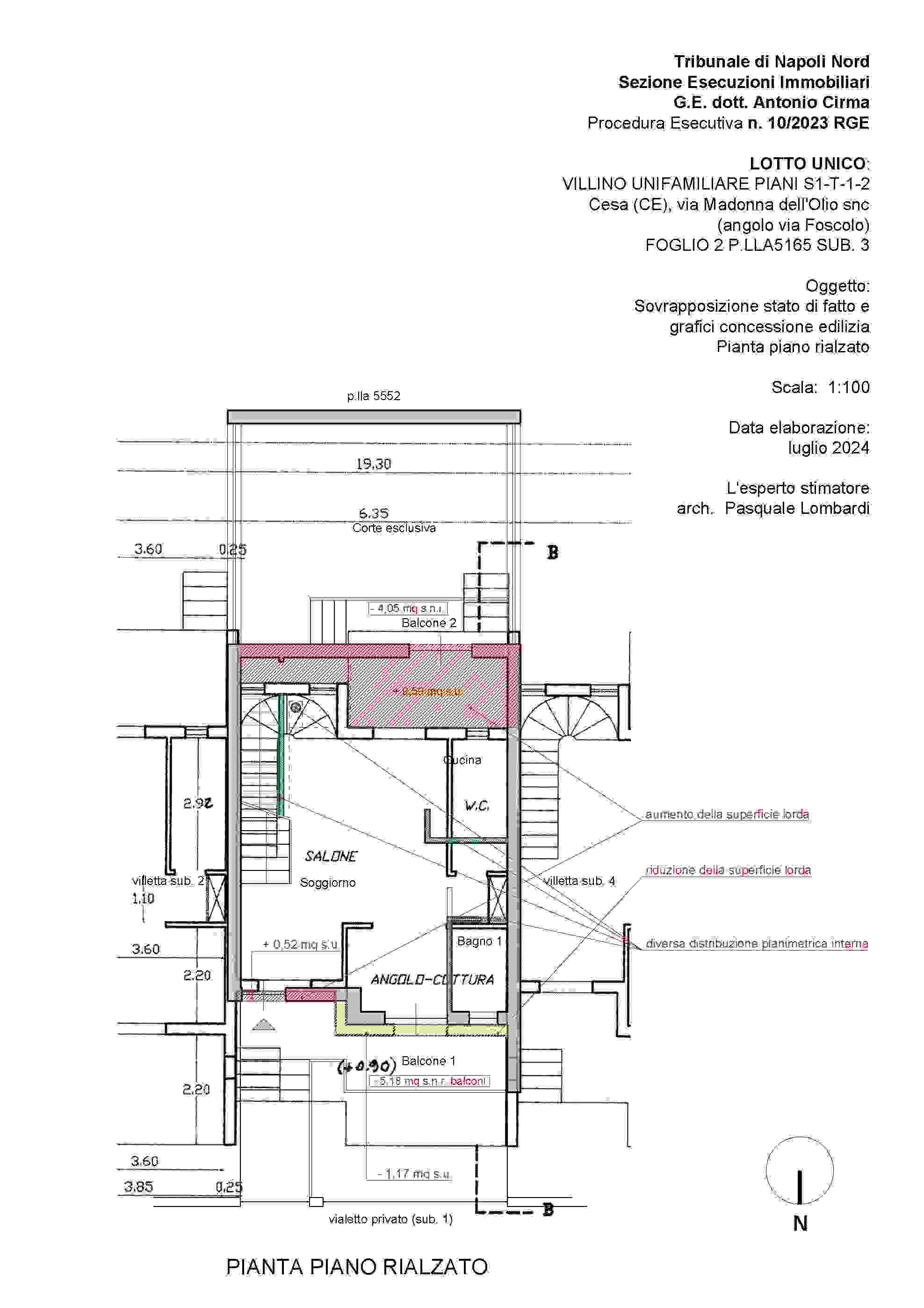
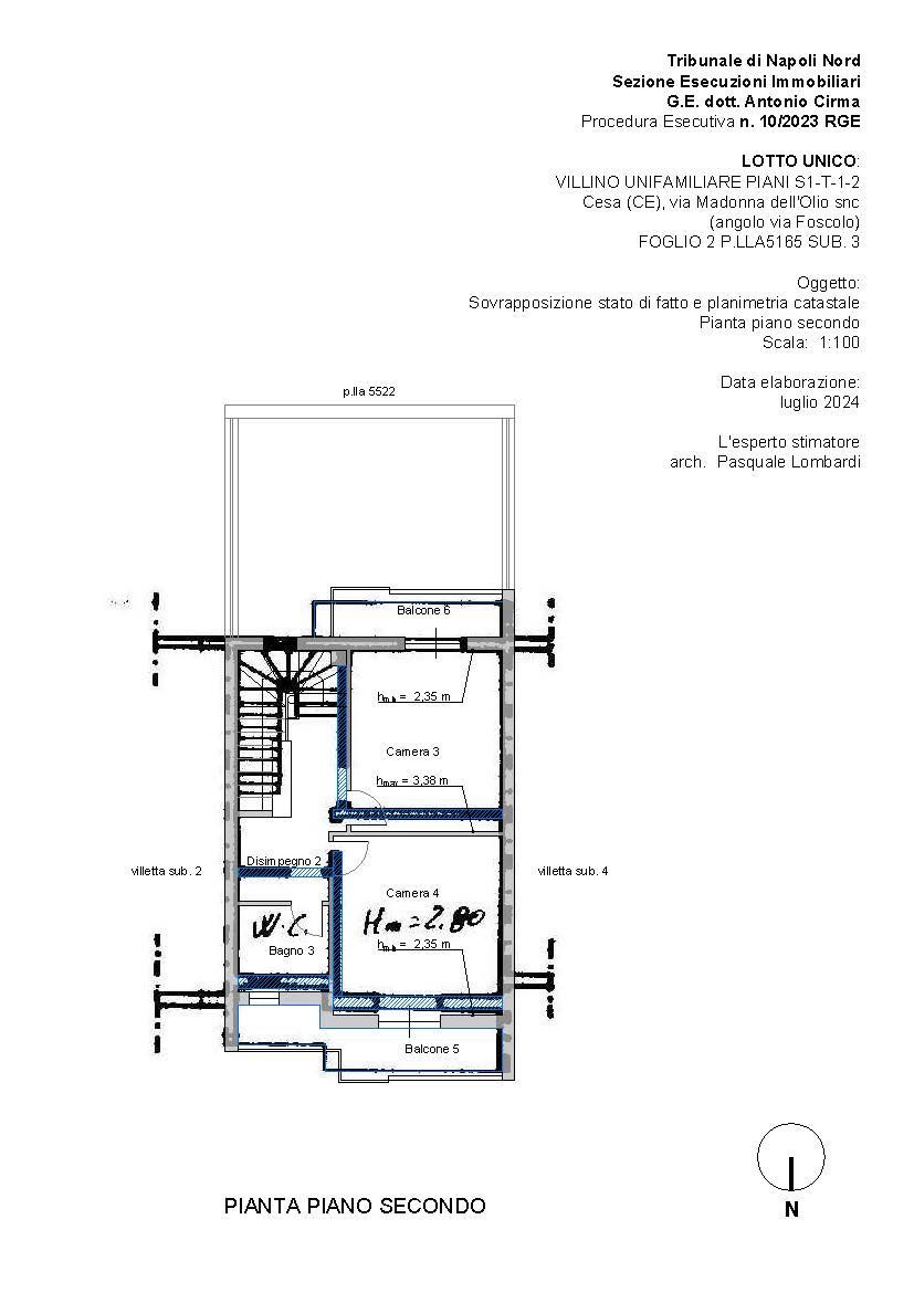
LOTTO UNICO: PIENA ED INTERA PROPRIETÀ DI VILLINO UNIFAMILIARE, FACENTE PARTE DI UN PICCOLO COMPLESSO DI VILLINI A SCHIERA SITO NEL COMUNE DI CESA (CE) ALLA VIA MADONNA DELL’OLIO SNC AD ANGOLO CON VIA UGO FOSCOLO. SI ARTICOLA IN UN LIVELLO SEMINTERRATO E TRE LIVELLI FUORI TERRA.


Dati immobile
  • ID immobile: 857643
  • Lotto: LOTTO UNICO
  • Data vendita: 24.02.2026
  • Prezzo base: 138000.00
  • Rialzo minimo: 5000.00
  • Data inserimento: 04.12.2025

Vuoi fare un affare immobiliare?