Immobile Residenziale

Viale Trieste 1, 36075 - Montecchio Maggiore(VI) data asta : 30.01.2026 da €211.219 (Asta)
Richiedi info:
ASTANETWORK
Descrizione

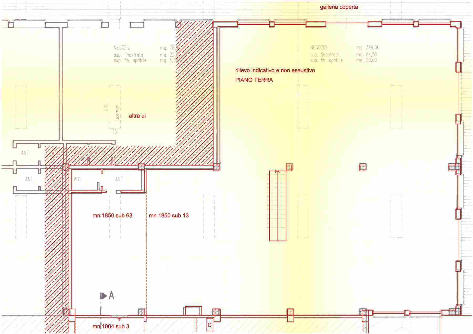
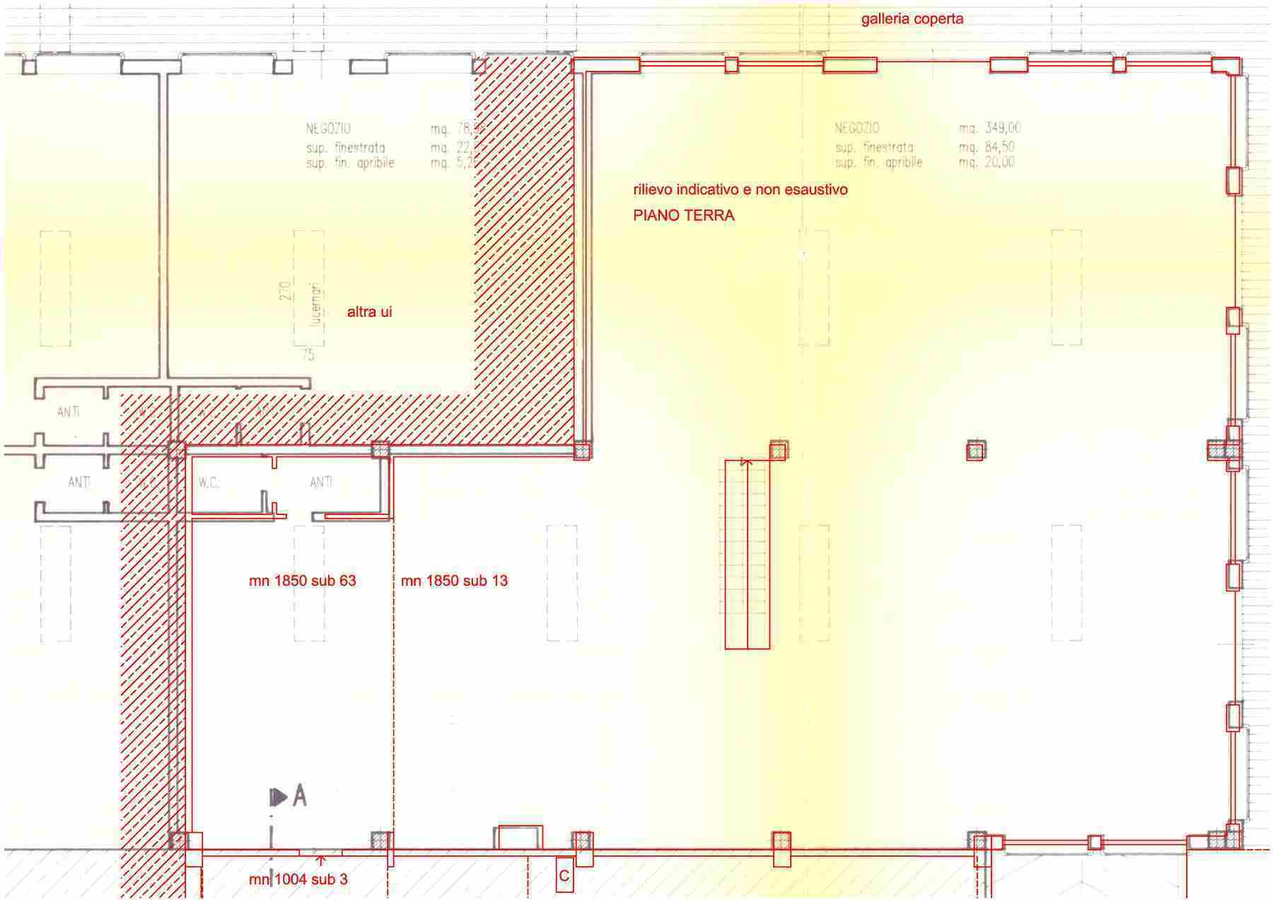
Complesso immobiliare composto da: 2 negozi al piano terra, 3 magazzini ed 1 autorimessa al piano interrato, due porzioni immobiliari al piano terra censite come F3 “in corso di costruzione” ma di ...


Dati immobile
  • ID immobile: 858616
  • Lotto: LOTTO UNICO
  • Data vendita: 30.01.2026
  • Prezzo base: 281625.00
  • Rialzo minimo: 0.00
  • Data inserimento: 06.12.2025

Vuoi fare un affare immobiliare?