Immobile Residenziale

Via dei Campi, 3, 23873 - Missaglia(LC) data asta : 04.02.2026 da €344.850 (Asta)
Richiedi info:
ASTANETWORK
Descrizione

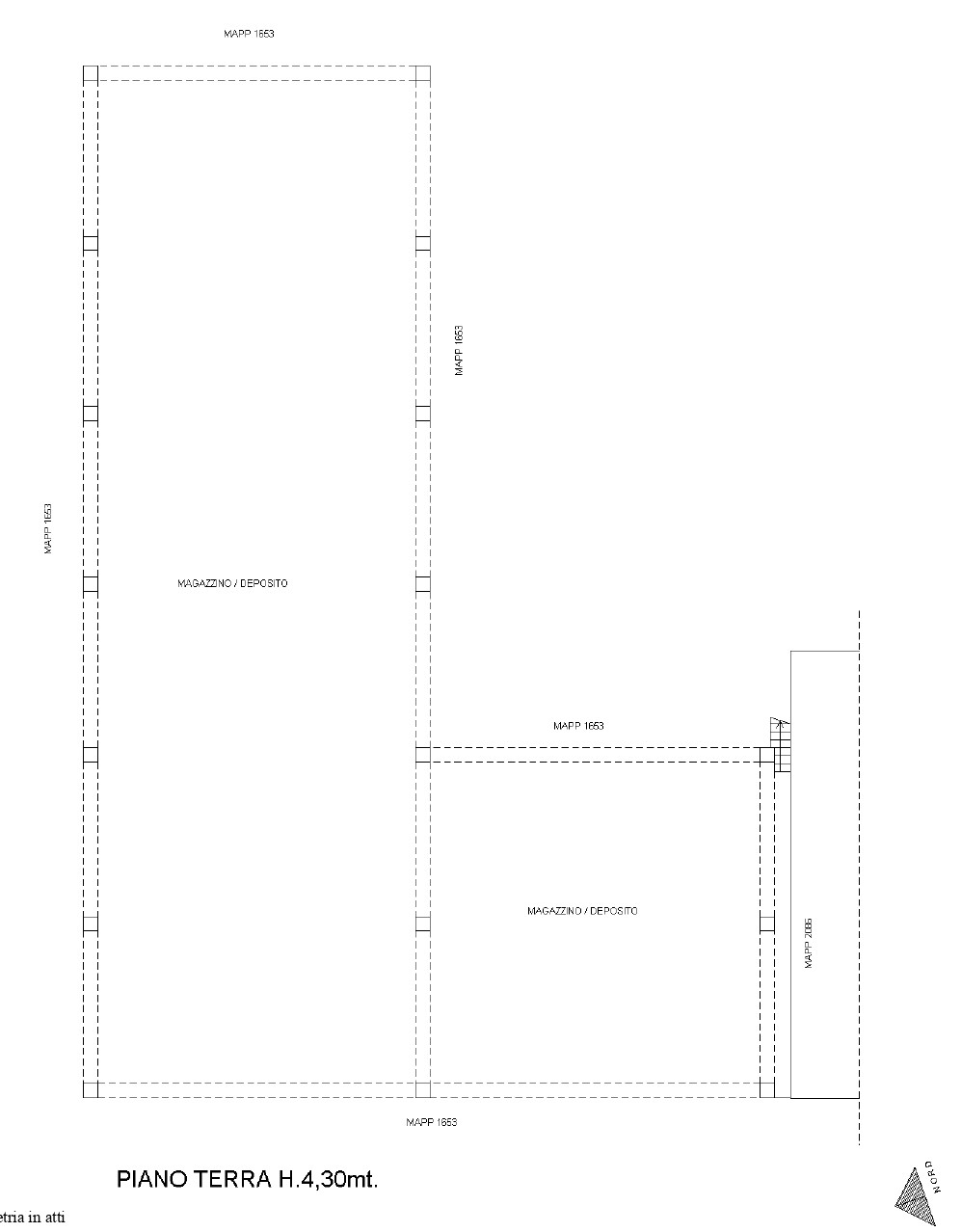
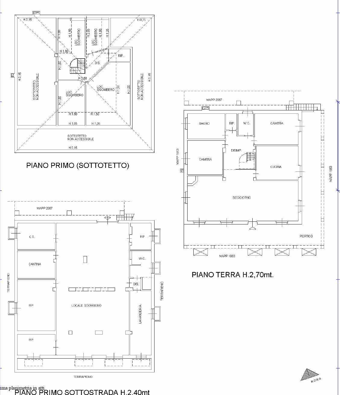
Piena Proprietà. In Comune di MISSAGLIA Frazione Campù Superiore Via dei Campi 3,villa singola composta da soggiorno/pranzo,cucina,2 camere,2 bagni,ripostiglio,corridoio e porticato al pt;3 locali sgombero,ripostiglio e bagno (privo delle altezze per essere considerato tale) al piano 1-sot;sgombero,centrale termica,cantina,3 ripostigli,disimpegno,bagno,lavanderia ed intercapedine al pS1; magazzino/deposito al pt, aperto su tutti i lati e terreni;il tutto edificato ai fini dell'attività agricola.


Dati immobile
  • ID immobile: 859078
  • Lotto: LOTTO UNICO
  • Data vendita: 04.02.2026
  • Prezzo base: 459800.00
  • Rialzo minimo: 1000.00
  • Data inserimento: 10.12.2025

Vuoi fare un affare immobiliare?