Immobile Residenziale

Via Padre Modestino, 20, 80027 - Frattamaggiore(NA) data asta : 25.02.2026 da €78.750 (Asta)
Richiedi info:
ASTANETWORK
Descrizione

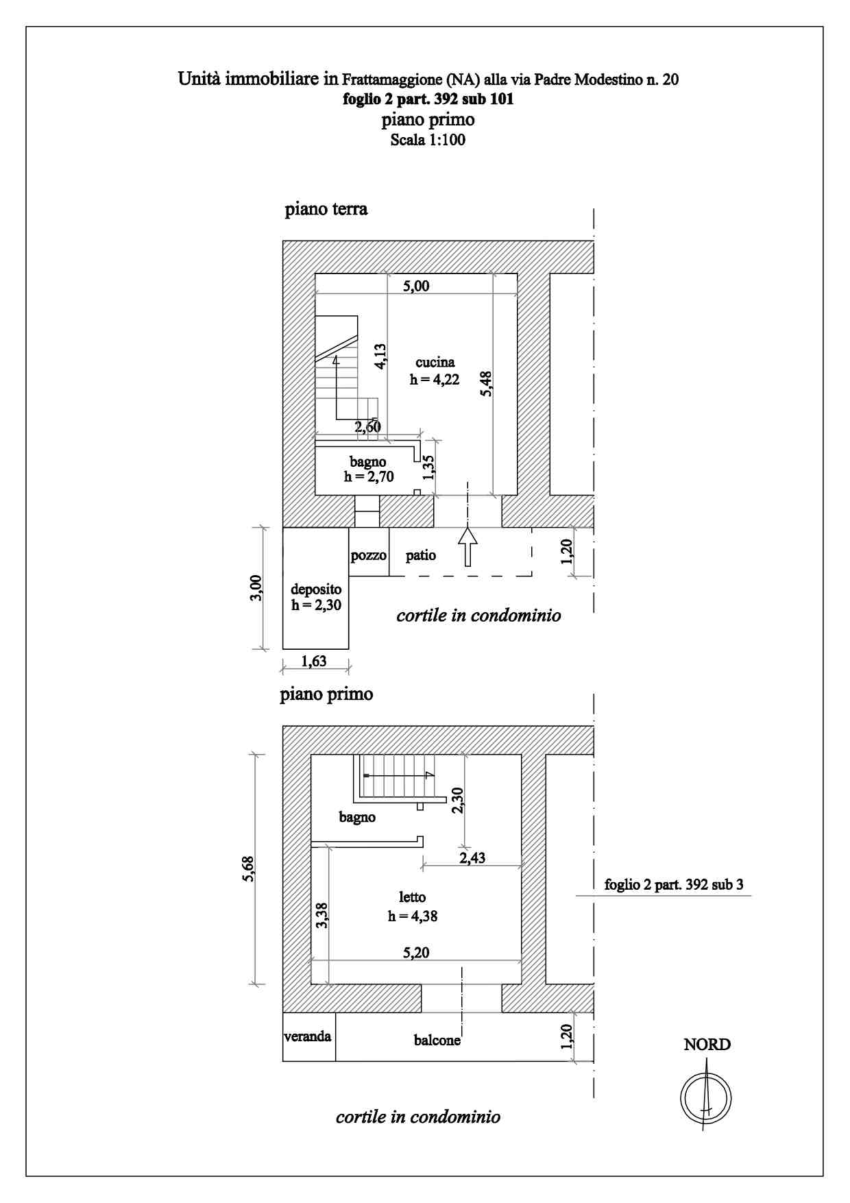
APPARTAMENTO FRATTAMAGGIORE (NA), via Padre Modestino n. 20, p. T/1, categoria catastale A/4, su due livelli: piano terra composto da cucina e bagno e piano primo composto da camera da letto e bagno, collegati a mezzo di scala interna.


Dati immobile
  • ID immobile: 860017
  • Lotto: 1
  • Data vendita: 25.02.2026
  • Prezzo base: 105000.00
  • Rialzo minimo: 1000.00
  • Data inserimento: 13.12.2025

Vuoi fare un affare immobiliare?