Immobile Residenziale

Via Della Lontra, 17, 00040 - Ardea(RM) data asta : 20.02.2026 da €105.750 (Asta)
Richiedi info:
ASTANETWORK
Descrizione

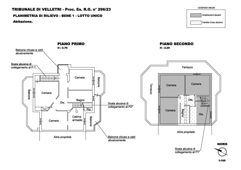
Abitazione in fabbricato di tipo bifamiliare, piano primo e secondo,con annessa corte esclusiva al piano terra, locale deposito piano T, garage, piano S 1 con cantina eannessa rampa di accesso esterna.


Dati immobile
  • ID immobile: 860526
  • Lotto: LOTTO UNICO
  • Data vendita: 20.02.2026
  • Prezzo base: 141000.00
  • Rialzo minimo: 7000.00
  • Data inserimento: 16.12.2025

Vuoi fare un affare immobiliare?