Altra Categoria

Via Costa Rotonda, 39, 00047 - Marino(RM) data asta : 27.02.2026 da €60.000 (Asta)
Richiedi info:
ASTANETWORK
Descrizione

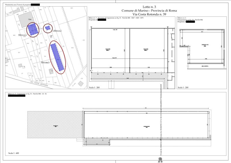
N.8 terreni agricoli di 6113,00 mq ubicati a Marino (RM) - Via Costa Rotonda n. 39, località Frattocchie, qualità vigneto. Privi di colture e urbanizzati con piazzali, strade e aree a servizio della zona industriale, oltre che alcuni manufatti, realizzati senza alcun titolo edilizio. Su tali terreni insistono n.1 capannone industriale di circa 450,00 mq, un manufatto di circa 170 mq e n.1 capannone industriale di circa 1.050 mq, privi di titolo edilizio.


Dati immobile
  • ID immobile: 863822
  • Lotto: 3
  • Data vendita: 27.02.2026
  • Prezzo base: 80000.00
  • Rialzo minimo: 4000.00
  • Data inserimento: 24.12.2025

Vuoi fare un affare immobiliare?