Immobile Industriale

Via Costa Rotonda, 39, 00047 - Marino(RM) data asta : 27.02.2026 da €483.000 (Asta)
Richiedi info:
ASTANETWORK
Descrizione

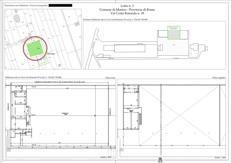
Fabbricato industriale di 820 mq ubicato in Marino (RM), Via Costa Rotonda n.39. Trattasi di porzione di capannone industriale su unico livello fuori terra, con struttura in ferro su basamento in cemento armato rialzato rispetto al piazzale antistante. Pianta con sviluppo regolare con affacci esterni prevalentemente sul cortile antistante l’immobile.


Dati immobile
  • ID immobile: 863830
  • Lotto: 1
  • Data vendita: 27.02.2026
  • Prezzo base: 644000.00
  • Rialzo minimo: 32000.00
  • Data inserimento: 24.12.2025

Vuoi fare un affare immobiliare?