+39 0282396408
Home
Chi siamo
Servizi
FAQ
Partners
Segnala e Guadagna
Info e recapiti
Contattaci
Immobili
Dettagli immobile
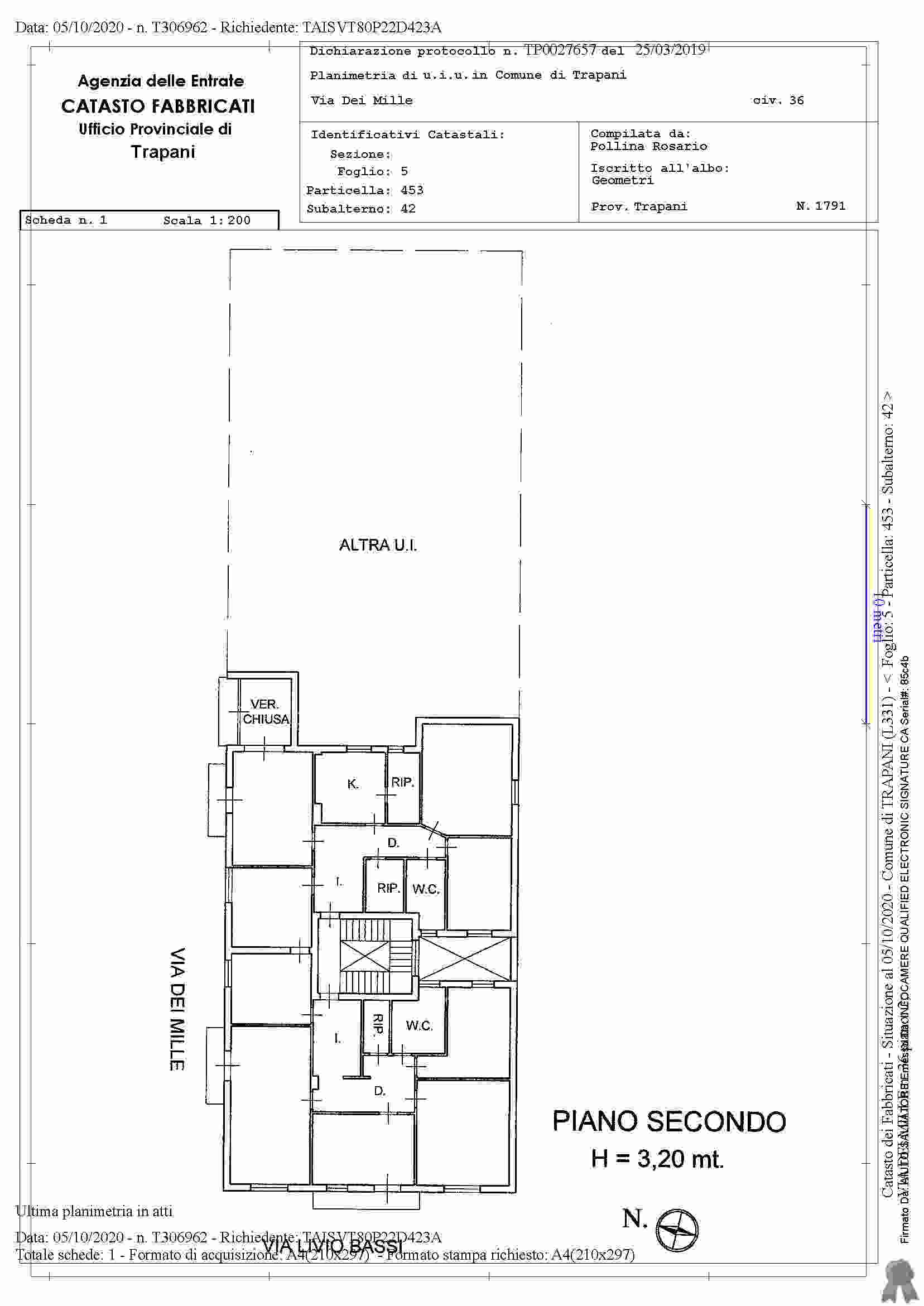
Immobile Residenziale
Via dei Mille, 36, 91100 - Trapani(TP)
data asta: 18.03.2026
Offerta minima €87.750
(Asta)
Richiedi info:
ASTANETWORK
########
+39 02.82396408
Mostra numero
Ho letto e accetto
l'informativa sulla privacy
Invia richiesta
Descrizione
Appartamento
Dati immobile
ID immobile:
864046
Lotto:
LOTTO UNICO
Data vendita:
18.03.2026
Prezzo base:
117.000
Rialzo minimo:
1000.00
Data inserimento:
28.12.2025
Vuoi fare un affare immobiliare?
Contattaci