Immobile Residenziale

Via Puzzariello, 10, Roccarainola Napoli - Roccarainola(NA) data asta: 14.04.2026 Offerta minima €102.000 (Asta)
Richiedi info:
ASTANETWORK
Descrizione

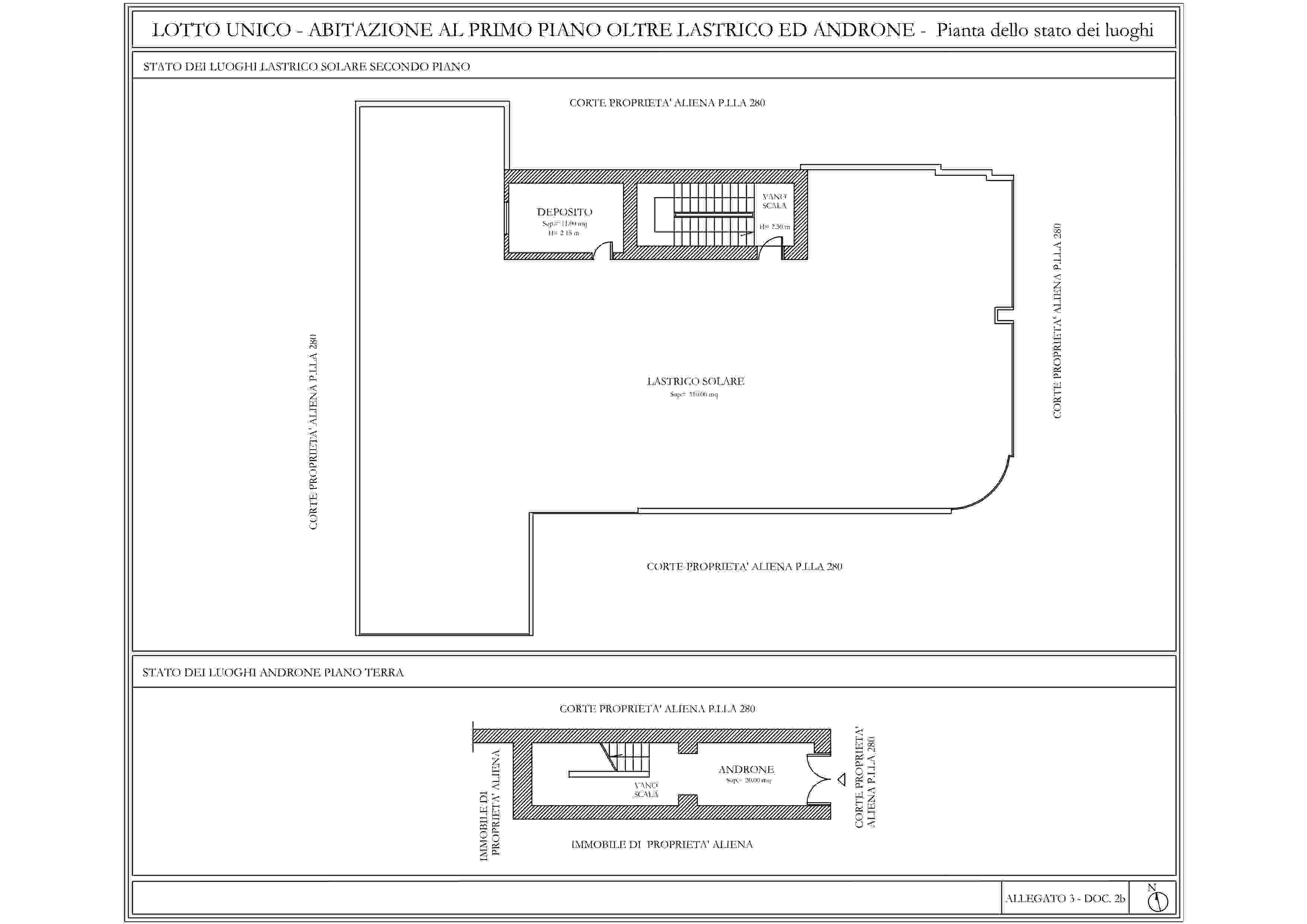
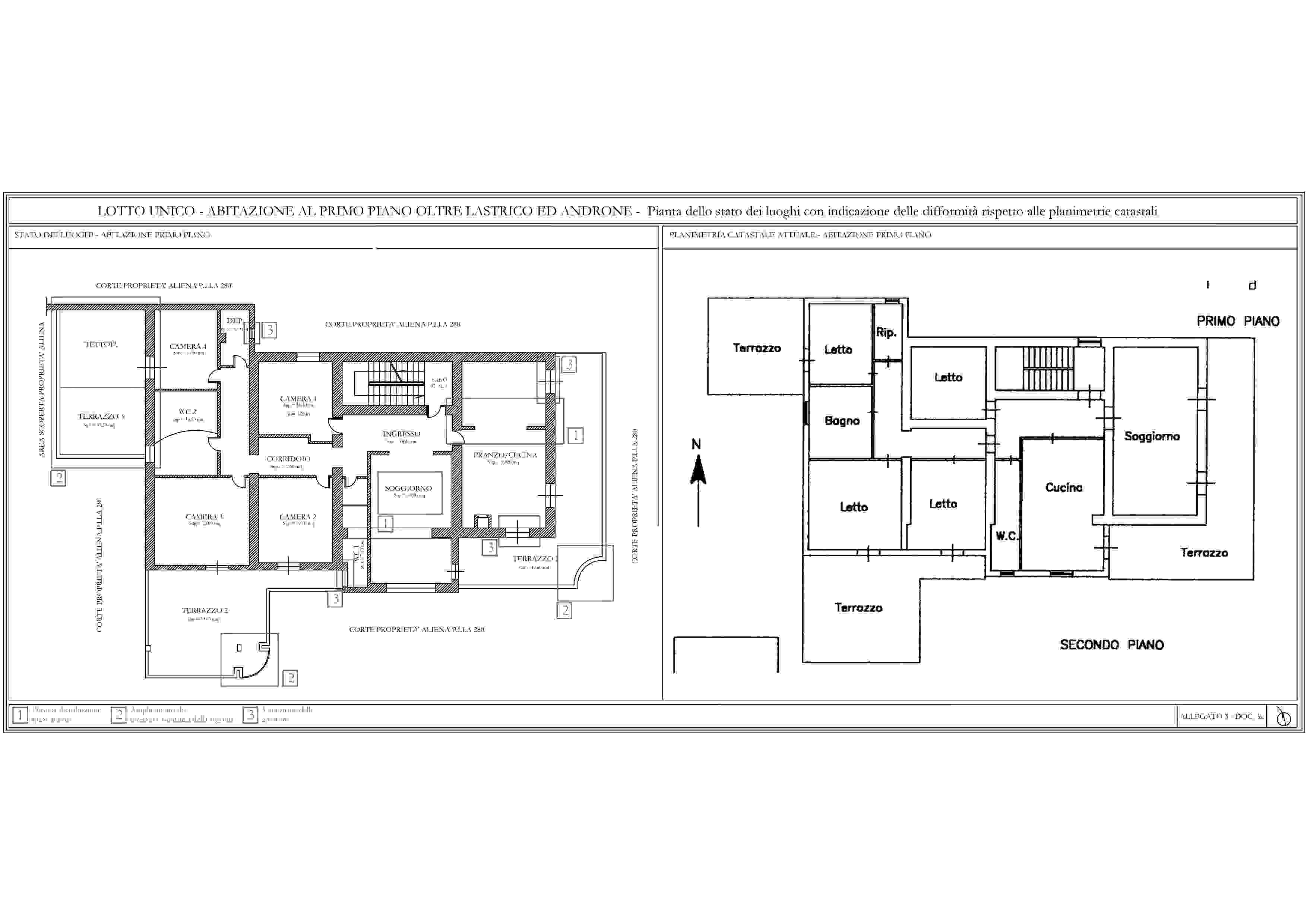
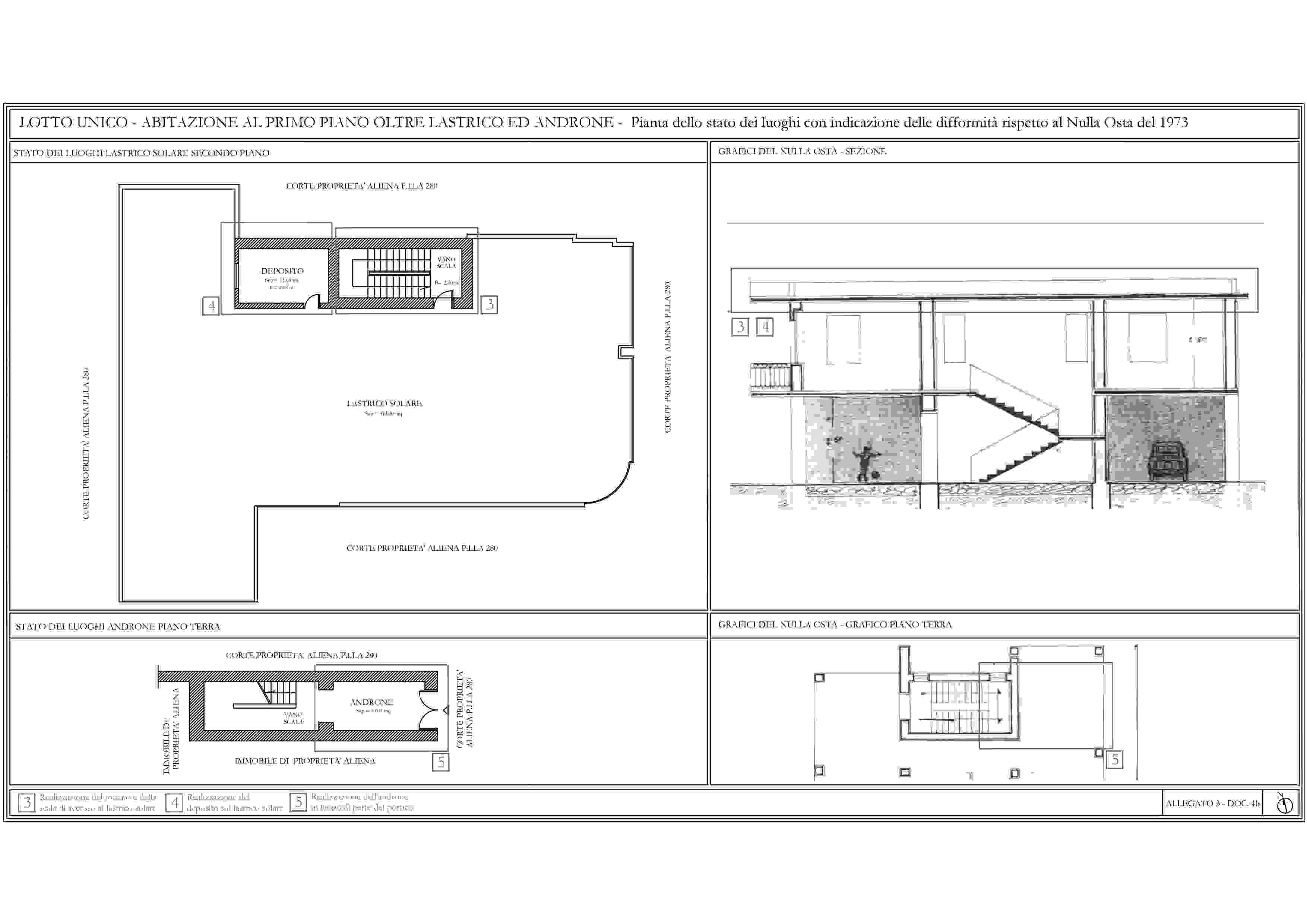
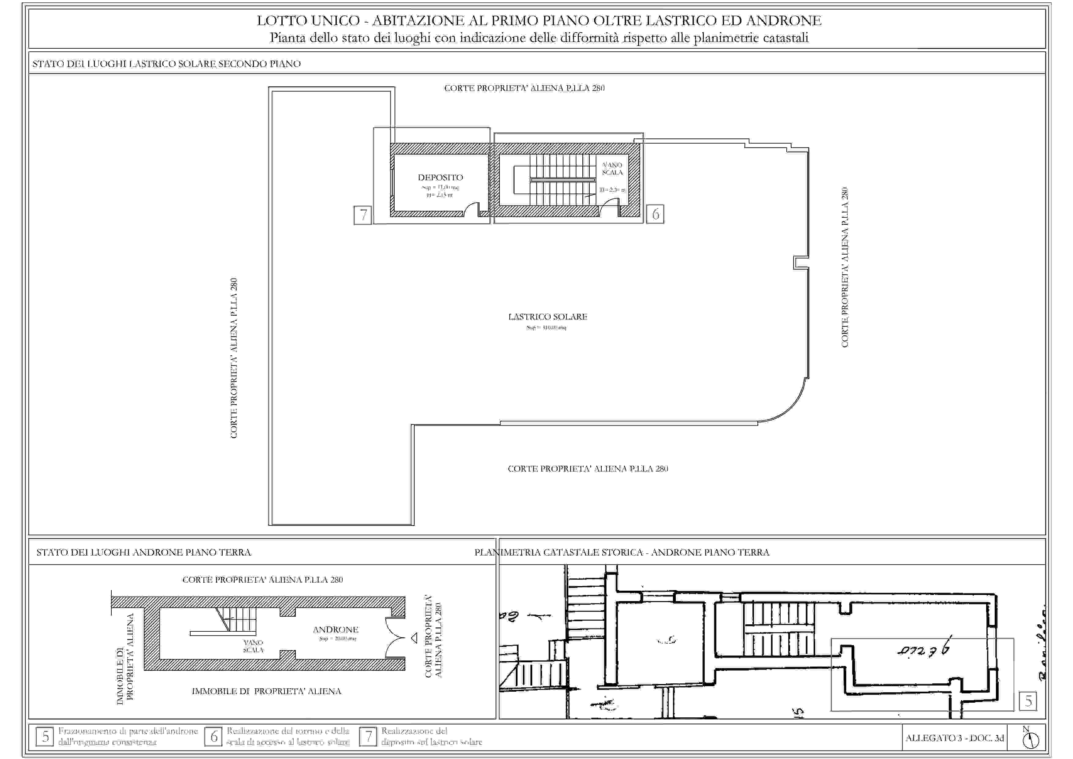
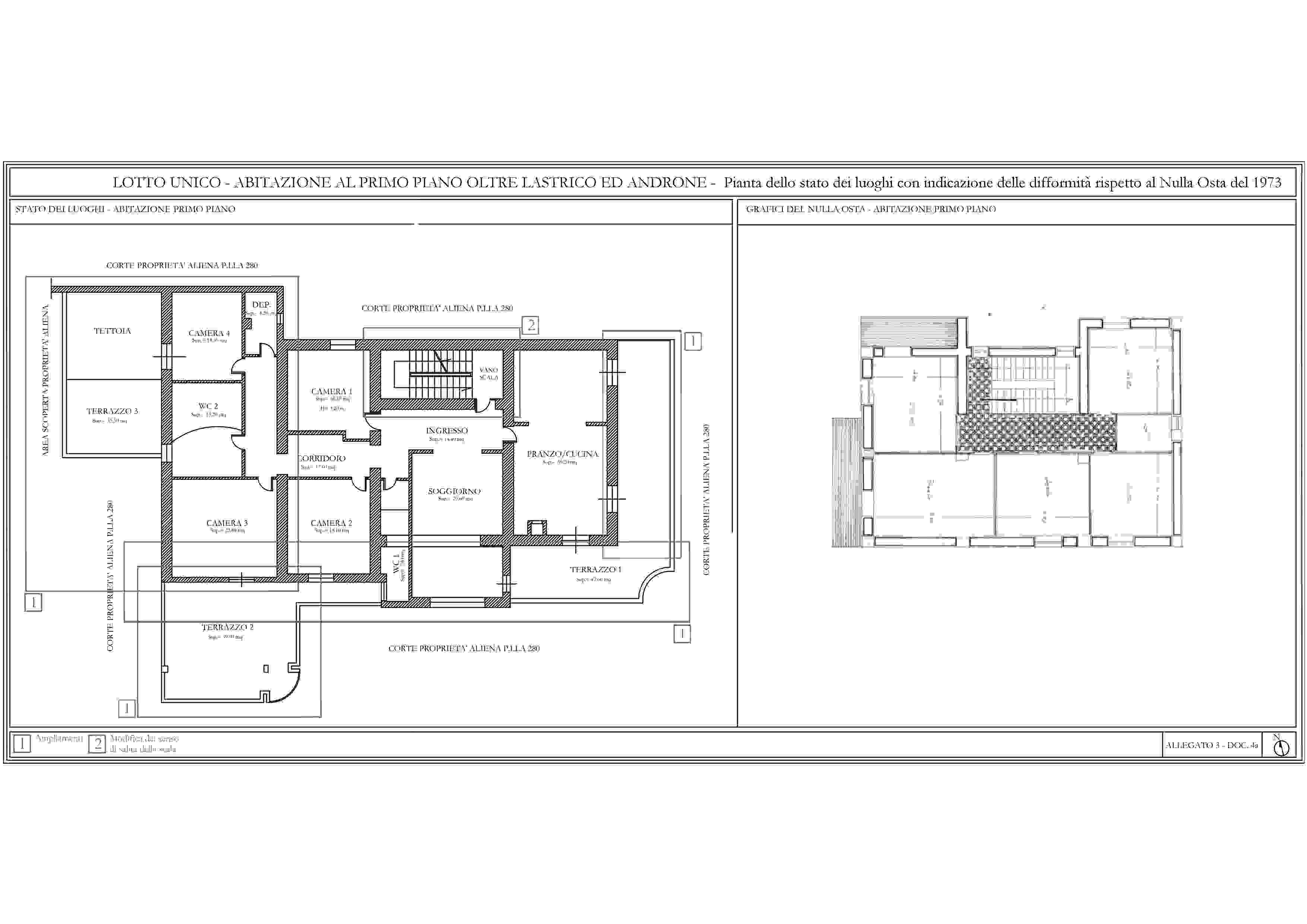
Piena ed intera proprietà di abitazione in villa ubicata al primo piano in Roccarainola (NA), identificata in NCEU del comune di Roccarainola al Foglio 16 - p.lla 280 – sub 2 - Categoria A/7 - Classe 1 - Consistenza 14 vani – Superficie catastale 303.00 mq (totale escluse aree scoperte: 256.00 mq) – Rendita catastale 1.301,47


Dati immobile
  • ID immobile: 864104
  • Lotto: LOTTO UNICO
  • Data vendita: 14.04.2026
  • Prezzo base: 136.000
  • Rialzo minimo: 3000.00
  • Data inserimento: 30.12.2025

Vuoi fare un affare immobiliare?