Altra Categoria

Via Brezza, Sant'Andrea del Pizzone CE, Italia, 81046 - Grazzanise(CE) data asta: 24.03.2026 Offerta minima €114.890 (Asta)
Richiedi info:
ASTANETWORK
Descrizione

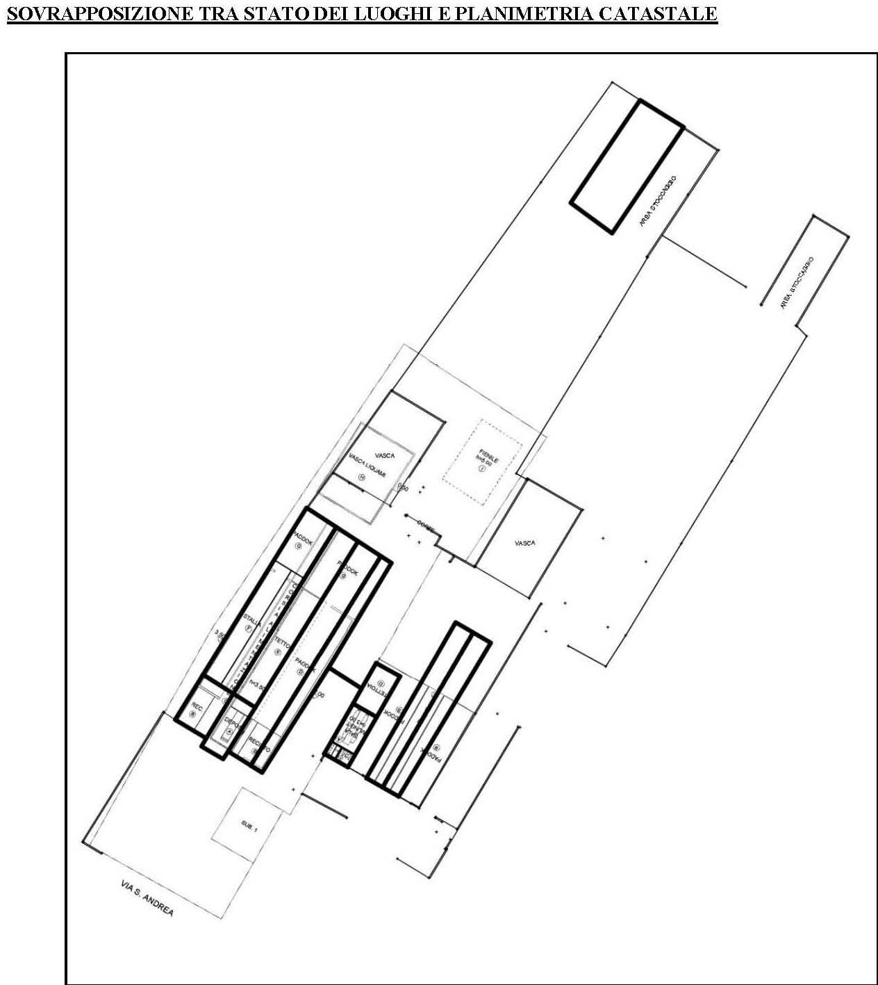
Piena ed intera proprietà di beni siti in Grazzanise (CE), lungo la strada provinciale di collegamento tra la frazione Brezza e Sant’Andrea del Pizzone composti da due fabbricati rurali destinati ad allevamento di bovini e bufale e numero due di particelle di terreno


Dati immobile
  • ID immobile: 866806
  • Lotto: LOTTO UNICO
  • Data vendita: 24.03.2026
  • Prezzo base: 153.187
  • Rialzo minimo: 0.00
  • Data inserimento: 14.01.2026

Vuoi fare un affare immobiliare?