Immobile Residenziale

Via Franco Alfano, 63100 - Ascoli Piceno(AP) data asta: 12.03.2026 Offerta minima €61.968 (Asta)
Richiedi info:
ASTANETWORK
Descrizione

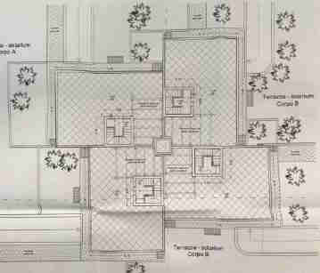
Fabbricato in corso di costruzione, avente caratteristiche assimilabili a “Villino indipendente”. Trattasi di un’ unità immobiliare articolata su tre piani, di cui due fuori terra, composta al suo interno da ABITAZIONE di mq. 164,21 e AUTORIMESSA di mq. 40 tra loro comunicanti e collegati alla corte esterna di pertinenza di mq. 26,48.


Dati immobile
  • ID immobile: 868757
  • Lotto: 3
  • Data vendita: 12.03.2026
  • Prezzo base: 61.968
  • Rialzo minimo: 1000.00
  • Data inserimento: 21.01.2026

Vuoi fare un affare immobiliare?