Immobile Residenziale

Contrada Berbaro n. 411/A, Marsala Trapani - Marsala(TP) data asta: 14.04.2026 Offerta minima €593.700 (Asta)
Richiedi info:
ASTANETWORK
Descrizione

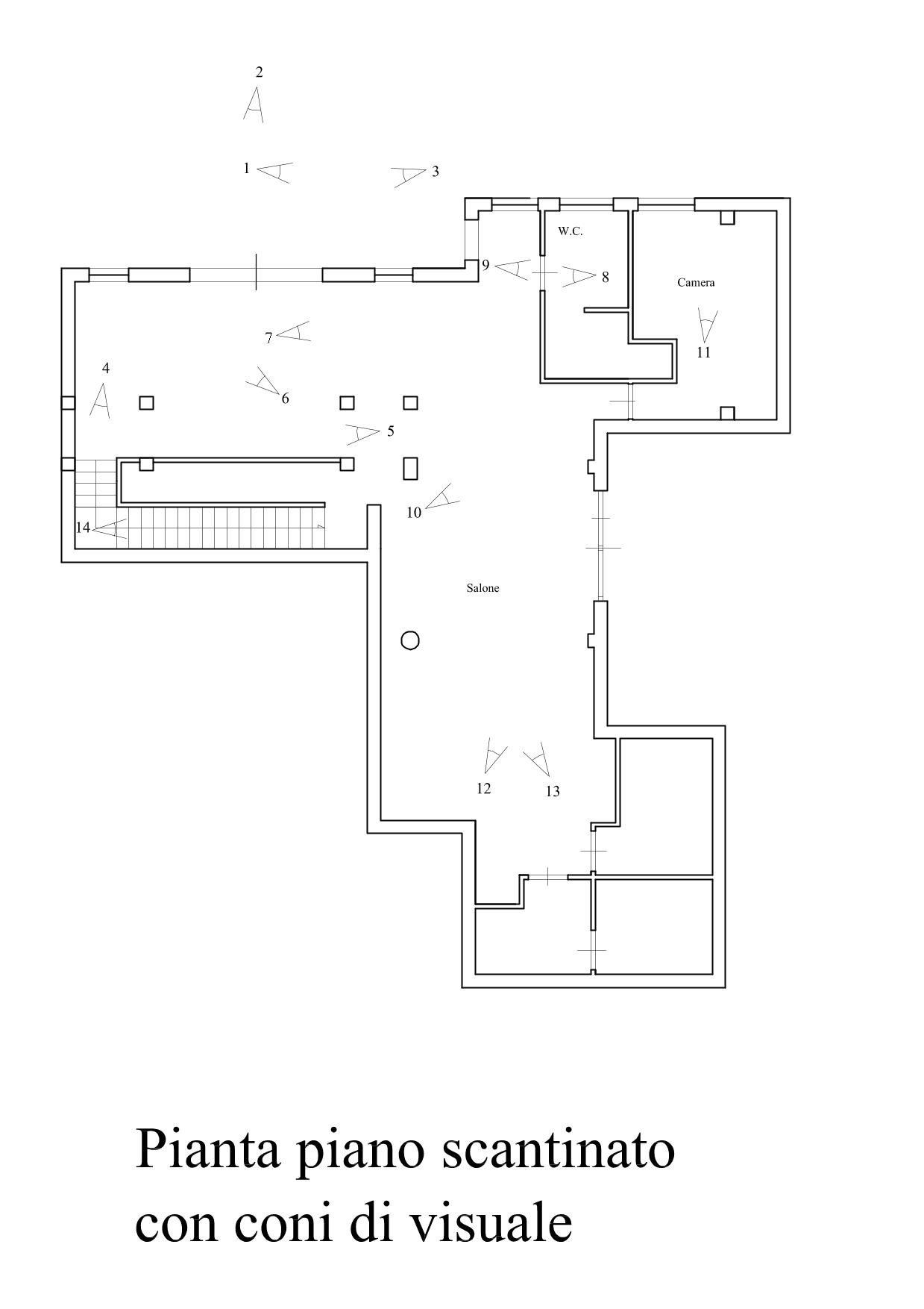
Villetta destinata a civile abitazione, costituita da un salotto con angolo cottura, una camera daletto, un bagno lavanderia due ripostigli ed un locale tecnico al piano seminterrato; da unacucina, salotto, due bagni, tre camere da letto ed un ripostiglio al piano terra; da una stanza alprimo piano, con giardino pertinenziale avente superficie di circa 2.560 mq. ad uso esclusivonel quale sono presenti una piscina e delle piccole costruzioni dedicate alla cura del giardino eal ricovero di an


Dati immobile
  • ID immobile: 869814
  • Lotto: 1
  • Data vendita: 14.04.2026
  • Prezzo base: 791.600
  • Rialzo minimo: 10000.00
  • Data inserimento: 23.01.2026

Vuoi fare un affare immobiliare?