+39 0282396408
Home
Chi siamo
Servizi
FAQ
Partners
Segnala e Guadagna
Info e recapiti
Contattaci
Immobili
Dettagli immobile
Immobile Residenziale
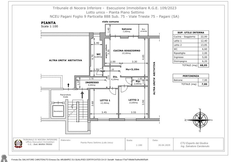
Viale Trieste, 75, 84016 - Pagani(SA)
data asta: 02.04.2026
Offerta minima €44.250
(Asta)
Richiedi info:
ASTANETWORK
########
+39 02.82396408
Mostra numero
Ho letto e accetto
l'informativa sulla privacy
Invia richiesta
Descrizione
Piena ed intera proprietà di appartamento ubicato in Pagani (Sa) al Viale Trieste n. 75, piano VII.
Dati immobile
ID immobile:
871835
Lotto:
LOTTO UNICO
Data vendita:
02.04.2026
Prezzo base:
59,000
Rialzo minimo:
0.00
Data inserimento:
30.01.2026
Vuoi fare un affare immobiliare?
Contattaci