Immobile Residenziale

Via Vincenzo Monti, 5, 80014 - Giugliano In Campania(NA) data asta: 06.05.2026 Offerta minima €39.750 (Asta)
Richiedi info:
ASTANETWORK
Descrizione

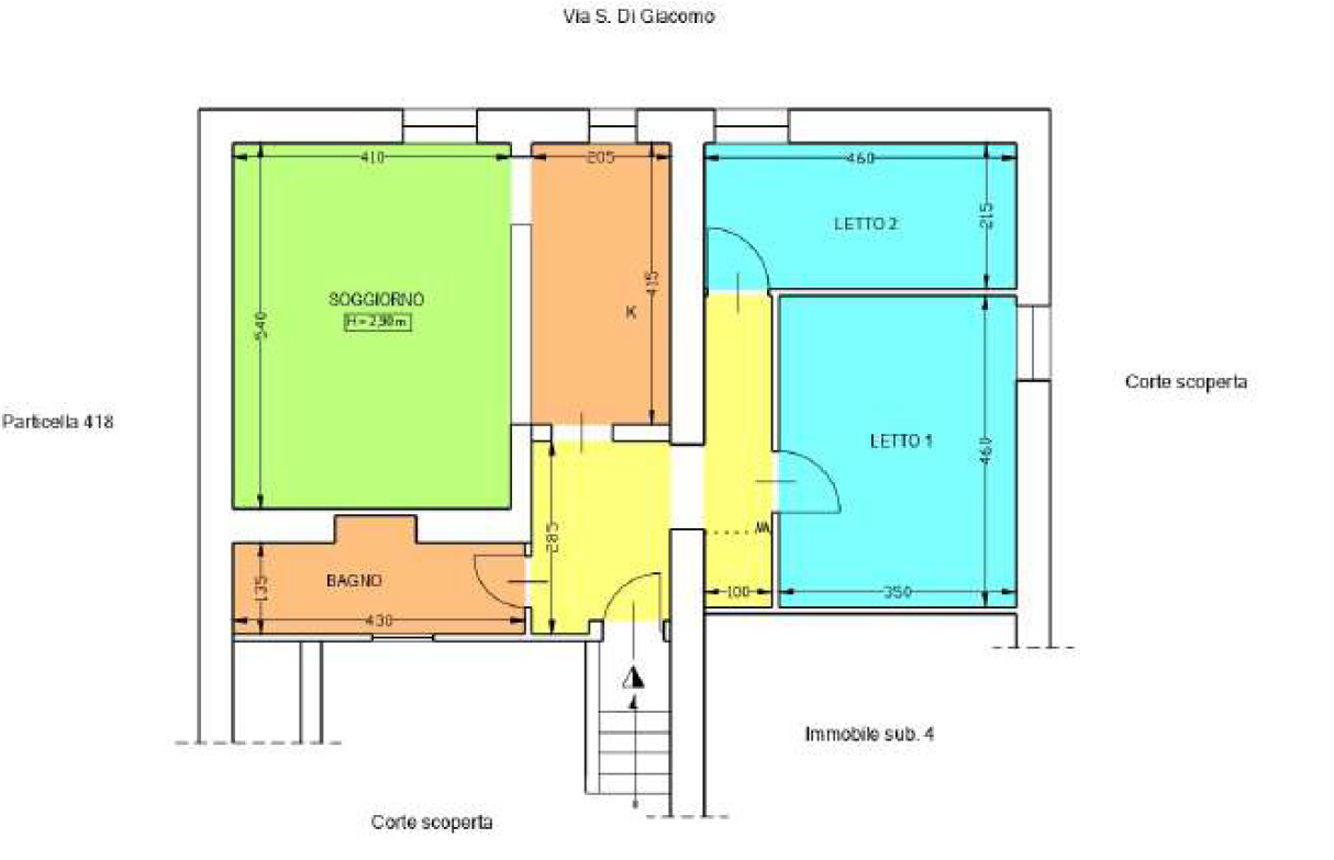
Piena ed intera proprietà di appartamento per civile abitazione ubicato in Giugliano in Campania (NA), alla Via Vincenzo Monti n. 5, p.no terra rialzato, interno 1; è composto da ingresso, soggiorno con cucina a vista, disimpegno, due camere, bagno.
Superficie commerciale 93 mq.


Dati immobile
  • ID immobile: 872160
  • Lotto: LOTTO UNICO
  • Data vendita: 06.05.2026
  • Prezzo base: 53.000
  • Rialzo minimo: 1000.00
  • Data inserimento: 31.01.2026

Vuoi fare un affare immobiliare?