Altra Categoria

Via Francesco Redi, 15 , 80014 - Giugliano In Campania(NA) data asta: 12.05.2026 Offerta minima €46.939 (Asta)
Richiedi info:
ASTANETWORK
Descrizione

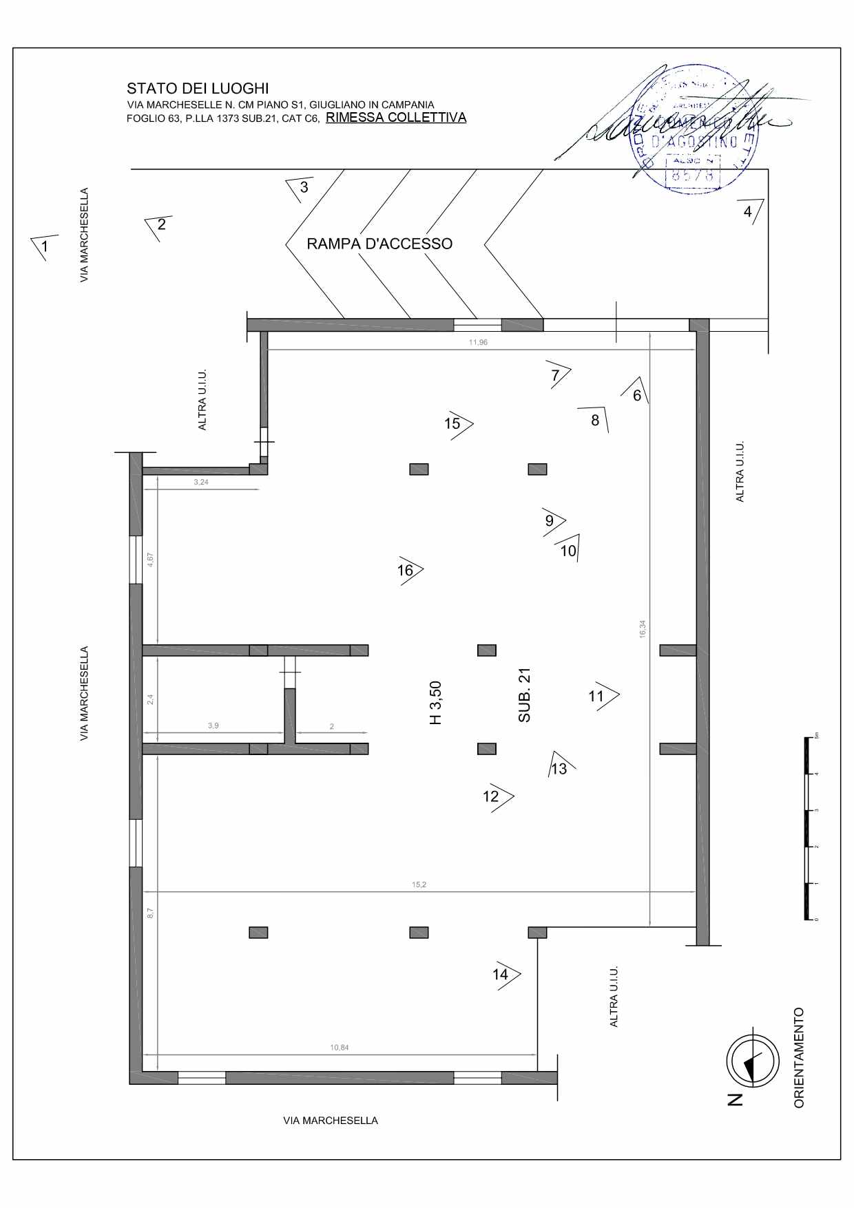
LOTTO UNICO: Piena proprietà di tre posti auto ubicati in Giugliano in Campania (Na) alla Via Francesco Redi n. 15 (già Via Marchesella) piano S1, riportati in Catasto con i seguenti dati identificativi: BENE 1- foglio 63, particella 1373, sub 19, cat. C6, cons. 16 mq, rendita 60,32; BENE 2- foglio 63, particella 1373, sub 20, cat. C6, cons. 12 mq, rendita 45,24; BENE 3- foglio 63, particella 1373, sub 21, cat. C6, cons. 187 mq, rendita 705,02;


Dati immobile
  • ID immobile: 872700
  • Lotto: LOTTO UNICO
  • Data vendita: 12.05.2026
  • Prezzo base: 62.585
  • Rialzo minimo: 2500.00
  • Data inserimento: 03.02.2026

Vuoi fare un affare immobiliare?