Immobile Residenziale

Via via olevano 211, 84091 - Battipaglia(SA) data asta: 21.04.2026 Offerta minima €52.500 (Asta)
Richiedi info:
ASTANETWORK
Descrizione

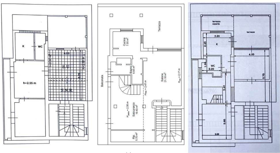
Piena Proprietà di unità abitativa ubicata nel Comune di BATTIPAGLIA, alla Via Olevano, Civico 211, posta al quinto piano di un fabbricato di tipo condominiale


Dati immobile
  • ID immobile: 878070
  • Lotto: LOTTO UNICO
  • Data vendita: 21.04.2026
  • Prezzo base: 70.000
  • Rialzo minimo: 3000.00
  • Data inserimento: 19.02.2026

Vuoi fare un affare immobiliare?