Immobile Residenziale

C.so Trento e Trieste, 174, 16019 - Ronco Scrivia(GE) data asta: 06.05.2026 Offerta minima €23.063 (Asta)
Richiedi info:
ASTANETWORK
Descrizione

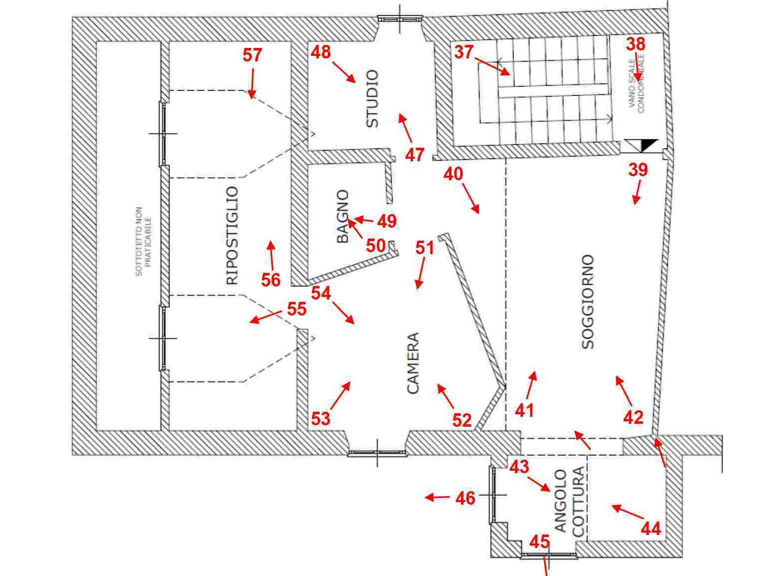
Piena proprietà di appartamento ubicato in Ronco Scrivia (Ge), frazione di Borgo Fornari, Corso Trento e Trieste, edificio 174, piano 3°, l’immobile occupa parte del 3° piano sottotetto dell’edificio ed è composto da soggiorno in ingresso con angolo cottura, un locale studio, un bagno, una camera da letto ed un locale sgombero/ripostiglio, superficie commerciale mq 71,34.


Dati immobile
  • ID immobile: 880922
  • Lotto: 3
  • Data vendita: 06.05.2026
  • Prezzo base: 30.750
  • Rialzo minimo: 1000.00
  • Data inserimento: 26.02.2026

Vuoi fare un affare immobiliare?