Immobile Residenziale

Via Renzo e Lucia, 4, 23868 - Valmadrera(LC) data asta: 20.05.2026 Offerta minima €166.444 (Asta)
Richiedi info:
ASTANETWORK
Descrizione

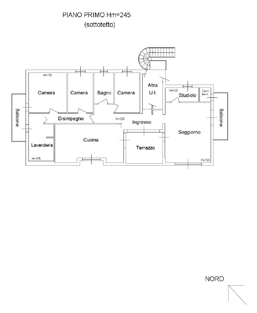
Piena Proprietà. In Comune di VALMADRERA nel fabbricato bifamiliare in Via Renzo e Lucia n. 4,unità immobiliare utilizzata come appartamento al p.1-sottotetto (ancorchè priva dei contro tavolati necessari al raggiungimento dell'altezza media ponderale richiesta per il recupero del sottotetto ai fini abitativi); composta da dis, soggiorno, ripostiglio (utilizzato come studio), cucina abitabile, 3 camere, bagno, lavanderia, terrazzo a pozzo, 2 balconi e centrale termica.


Dati immobile
  • ID immobile: 881996
  • Lotto: LOTTO UNICO
  • Data vendita: 20.05.2026
  • Prezzo base: 221.925
  • Rialzo minimo: 1000.00
  • Data inserimento: 03.03.2026

Vuoi fare un affare immobiliare?