Immobile Residenziale

Via Ripesecche, 3A, 23887 - Olgiate Molgora(LC) data asta: 20.05.2026 Offerta minima €118.125 (Asta)
Richiedi info:
ASTANETWORK
Descrizione

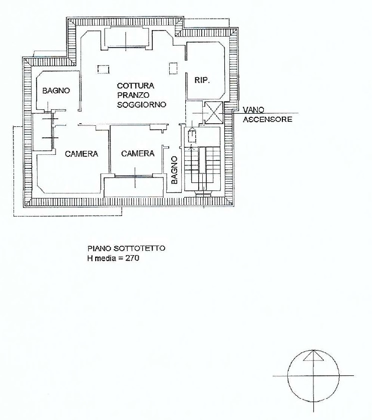
Piena Proprietà. In Comune di OLGIATE MOLGORA, nel fabbricato condominiale, composto da due corpi di fabbrica, alla via Ripesecche n. 3/A: appartamento al piano terzo/sottotetto, composto da cottura/soggiorno/pranzo con terrazzo, due camere ognuna con terrazzo e due bagni con relativi disimpegni; box singolo al piano terra e posto auto scoperto al piano terra.


Dati immobile
  • ID immobile: 882045
  • Lotto: LOTTO UNICO
  • Data vendita: 20.05.2026
  • Prezzo base: 157.500
  • Rialzo minimo: 1000.00
  • Data inserimento: 03.03.2026

Vuoi fare un affare immobiliare?