Immobile Residenziale

Via Fausto Valsecchi, 85, 23900 - Lecco(LC) data asta: 20.05.2026 Offerta minima €53.588 (Asta)
Richiedi info:
ASTANETWORK
Descrizione

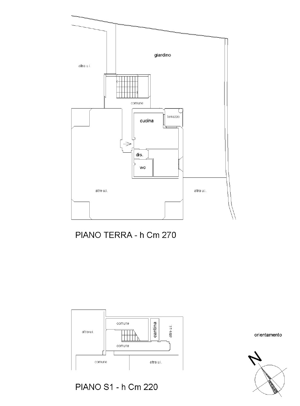
Piena Proprietà. In Comune di LECCO, Sezione di SAN GIOVANNI A CASTAGNE, nel fabbricato condominiale in Via Fausto Valsecchi n. 85, appartamento composto da cucina/soggiorno, disimpegno, bagno, camera, terrazzo ed area di pertinenza a giardino al piano terra; con annesso vano ad uso cantina al piano primo-sottostrada; oltre a vano ad uso autorimessa anch'esso al piano primo-sottostrada.


Dati immobile
  • ID immobile: 882957
  • Lotto: 2
  • Data vendita: 20.05.2026
  • Prezzo base: 71.450
  • Rialzo minimo: 1000.00
  • Data inserimento: 05.03.2026

Vuoi fare un affare immobiliare?