Immobile Residenziale

Localita' San Vito - Via dei Marmorari , 67033 - Pescocostanzo(AQ) data asta: 22.05.2026 Offerta minima €94.425 (Asta)
Richiedi info:
ASTANETWORK
Descrizione

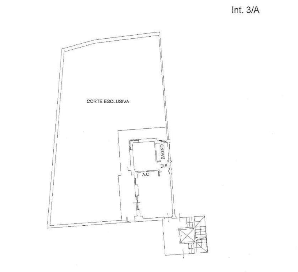
Appartamento sito in Pescocostanzo (AQ), nel complesso residenziale Borgo Presentosa, in Via dei Marmorari località San Vito senza numero civico.
L'appartamento si trova nell’Edificio A del Condominio “IL DELFINO” al piano terra (primo catastale), ha una superficie utile interna di circa 32 mq ed è costituito da un vano ingresso/soggiorno/angolo cottura, un piccolo disimpegno, una camera ed un bagno. La corte esclusiva annessa è posta allo stesso piano dell’alloggio e misura circa 236 mq.


Dati immobile
  • ID immobile: 889311
  • Lotto: 1
  • Data vendita: 22.05.2026
  • Prezzo base: 125.900
  • Rialzo minimo: 2000.00
  • Data inserimento: 27.03.2026

Vuoi fare un affare immobiliare?