Immobile Commerciale

Crocevia, Contrada Cozzo La Torre, 87044 - Cerisano(CS) data asta: 04.06.2026 Offerta minima €115.613 (Asta)
Richiedi info:
ASTANETWORK
Descrizione

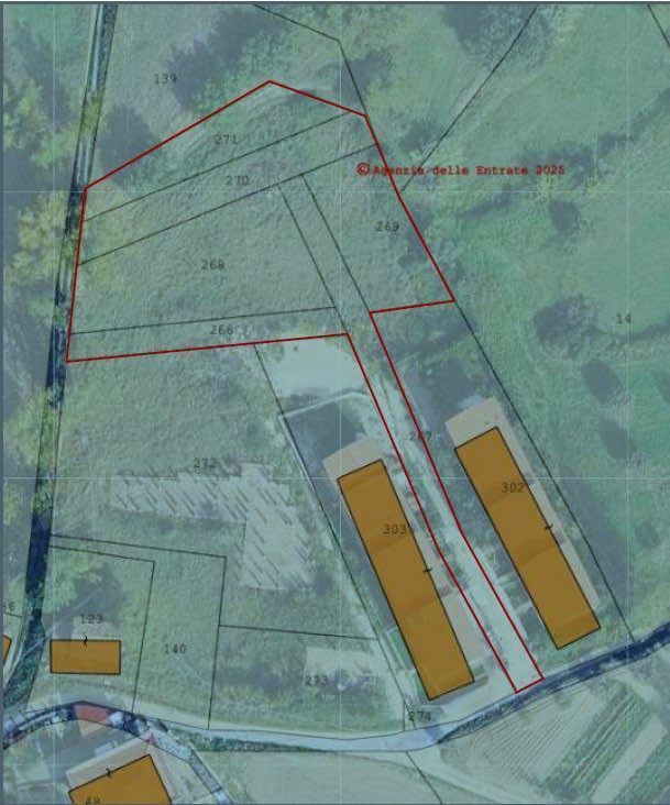
Piena proprietà del lotto unico composto da fabbricati e terreni. Si tratta di 7 villette a schiera realizzate in cemento armato su 4 livelli suddivisi su tre edifici. Terreni funzionali al completamento della lottizzazione: Superfice complessiva è pari a 3.010 mq.


Dati immobile
  • ID immobile: 891848
  • Lotto:
  • Data vendita: 04.06.2026
  • Prezzo base: 154.150
  • Rialzo minimo: 2000.00
  • Data inserimento: 02.04.2026

Vuoi fare un affare immobiliare?