Immobile Residenziale

Vicolo Togliatti n.9/11, 81055 - Santa Maria Capua Vetere(CE) data asta: 23.06.2026 Offerta minima €209.250 (Asta)
Richiedi info:
ASTANETWORK
Descrizione

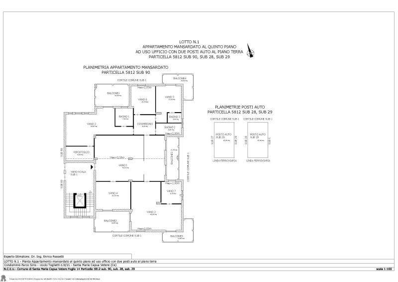
Piena ed intera proprietà di appartamento mansardato al quinto piano ad uso ufficio con due posti auto al piano terra di cui quello più ad est è accessibile solamente da quello precedente appartenenti al Condominio Parco Sirio ubicato in Santa Maria Capua Vetere (Ce) al vicolo Togliatti n.9/11


Dati immobile
  • ID immobile: 893335
  • Lotto: 1
  • Data vendita: 23.06.2026
  • Prezzo base: 279.000
  • Rialzo minimo: 0.00
  • Data inserimento: 08.04.2026

Vuoi fare un affare immobiliare?